
|
像我國南方農村地區喜歡建樓房,二層三層的,今天給大家推薦5款雙排別墅效果圖,有歐式風格的,有簡單大氣實用型,最有的是2款中式風格的,不僅有一種獨特的韻味,而且造價經濟實惠,只要30來萬就可以建。 戶型一
門面寬:12米 進深:11.7米 占地面積:140平方米 建筑層數:三層 建筑高度:11.96米(含屋頂) 屋頂形式:坡屋頂 主體造價:30萬,僅供參考
戶型二
占地面積:16.94米×11.24米(底層) 占地面積:190㎡ 開間:11.24米 進深:11.94米 建筑面積:396平方米 建筑層數:三層 建筑高度:12.3米(含屋頂) 屋頂形式:坡屋頂 主體參考造價:28萬
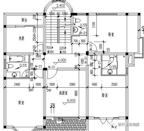
戶型三
面寬:9米 進深:16.5米 占地面積:109平方 建筑總面積:250平米 層數:三層,帶院 總層高:11.6米 屋檐口高:9.6米 建筑結構:磚混結構
戶型四
門前寬:9米 進深:16.8米 建筑面積:250平方米 用地面積:108平方米 建筑層數:3層 建筑高度:11.6米(含屋頂)坡屋頂 結構形式:磚混結構
戶型五
開間:16.6米 進深:9.5米 占地面積:135.60平方米 建筑面積:326平方米 建筑層數:三層 檐口高度:9.2米 總層高:11.6米 建筑參考造價:33萬
圖紙之家-專注農村別墅/自建房設計18年,集合國內200余位經驗豐富的設計師,被評為口碑最好的農村建筑設計公司! |

一層自建別墅設計圖,占地70平不大功能很齊全,非常適合農村養
占地:69.61平方米
帶地下室設計三層自建房別墅設計圖,復式挑空客廳
占地:192平方米
中式三層新農村房子別墅設計圖,看了那么久,還是中式最有韻味
占地:97.2平方米
200平米二層自建房別墅設計圖,外觀漂亮布局實用
占地:207.09平方米
適合農村建的二層別墅設計圖,簡約美觀,讓人心動不已
占地:153平方米
農村二層帶車庫四合院別墅設計圖,新中式外觀圖片,戶型實用方
占地:247平方米
帶配房的二層農村小別墅設計圖,大方適用,耐看經濟
占地:152.28平方米
美式二層別墅設計圖,含外觀效果圖,造型精美
占地:144平方米
兩層半30萬農村自建房別墅設計圖紙,客廳挑空,帶大露臺
占地:130平方米
面寬17米農村一層平房設計圖,簡約空間敞亮
占地:169.393平方米
新中式農村三層樓房設計圖紙,全套圖紙設計,線條錯落有致
占地:130平方米
農村小別墅一層設計圖紙,全套施工圖兩款戶型可選
占地:多種戶型可選
農村三層房屋設計圖紙,三層農村住宅設計效果圖,11米*10米
占地:100平方米
120平方米新農村全套二層施工設計圖紙大全11X11米
占地:120平方米
新農村中式三層四合院別墅設計戶型圖,農村自建四合院效果圖
占地:多種戶型
農村三間三層半別墅設計圖,舒適寬敞時尚經濟,居住生活方便舒
占地:168.29平方米
帶配房的二層鄉村歐式別墅設計圖,尺寸15.84×13.84米
占地:149.19平方米
回村蓋一層養老房別墅設計圖紙,面寬16米四開間戶型圖
占地:127平方米左右
農村三間一層別墅設計圖,經濟實用還好看
占地:139.56平方米
簡單漂亮實用的三層自建房設計圖,帶露臺,占地170平方米
占地:170平方米
推薦:10套新農村自建房設計圖,2026年最新設計
閱讀次數:4825737次
100套鄉村別墅圖片大全,2026年最新設計
閱讀次數:2492203次
6款農村蓋一層平房的設計圖,10萬元就能建起來
閱讀次數:1852637次
這11個一層農村自建房別墅火爆了朋友圈!我最喜歡戶型十!你呢
閱讀次數:750268次
農村6萬元建一層小別墅圖,你敢相信嗎
閱讀次數:567686次
農村5萬塊就能自建房,6套普通房子設計圖分享,你沒看錯!
閱讀次數:419410次
8套農村漂亮三間平房圖片,非常適合在農村修建!
閱讀次數:411197次
農村自建房化糞池怎么做?附方案及施工過程
閱讀次數:391783次
農村一層三間平房設計圖,告別土氣養老房,讓人忍不住點贊
閱讀次數:350581次
新農村二層樓房圖片造價12萬,挑一套回家建房吧!
閱讀次數:349126次
