
|
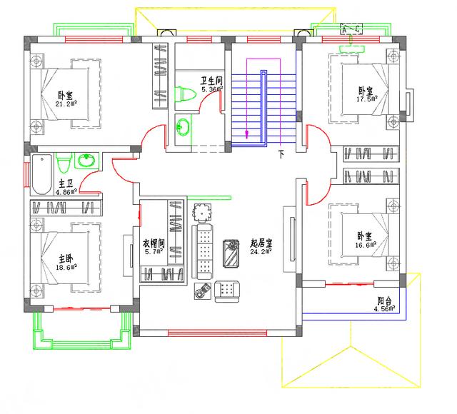
30萬2廳6臥14×11帶棋牌室臥室套間二層農村自建房全套施工圖
層數:二層 開間:14米 進深:11米 首層占地面積:148㎡ 總建筑面積:291㎡ 結構形式:框架結構 主體造價:30萬 功能設計
一層平面圖 一層:玄關、客廳、廚房、餐廳、棋牌室、主臥、次臥、公衛
二層:起居室、主臥(帶主衛、衣帽間)、臥室(帶陽臺)、臥室、臥室、公衛 圖紙之家-專注農村別墅/自建房設計18年,集合國內200余位經驗豐富的設計師,被評為口碑最好的農村建筑設計公司! |

125平兩層別墅房屋設計圖,帶普通和復式兩個戶型
占地:125平方米
新農村中式二層樓房設計圖紙及效果圖,125,150,170三個戶型可行
占地:多種戶型
簡單實用二層自建房子設計圖,主體造價僅17萬
占地:106.387平方米
185平米自建三層別墅房屋施工設計圖紙及效果圖
占地:187平方米
精致典雅的90平和100平方米二層樓房圖紙,藏不住的經典
占地:多種戶型
2026兩層半20多萬農村自建房圖,簡歐風格,美觀大氣
占地:120平方米
歐式大氣新農村三層別墅豪宅設計圖,外觀高端,對稱設計
占地:225平方米左右
15×12米一層農村寶藏戶型,適合養老房,看完鄰居直接要圖紙!
占地:180平方米
歐式三層樓房設計圖,客廳中空,旋轉樓梯,帶土灶房
占地:206平方米
農村4間3層樓房設計圖,帶車庫,挑空客廳,坡屋頂設計
占地:160平方米
鄉村三層別墅施工圖紙帶效果圖,田園別墅設計圖紙推薦
占地:178平方米
豪華高端三層帶地下室別墅設計圖,可帶電梯
占地:210平方米
130-140平方米簡歐風格二層別墅設計施工圖紙,簡約大氣
占地:137平方米左右
145平方米新農村二層別墅設計效果圖及施工圖,12.6米x11.4米
占地:147平方米
復式三層帶車庫簡歐小別墅設計圖,農村三層房屋設計圖
占地:126平方米
13X13米新農村中式風三層別墅設計方案,內部布局緊湊溫馨
占地:168.43平方米
復式客廳挑空三層別墅設計圖,帶外觀效果圖片,推薦
占地:150平方米
農村三層15萬自建房圖,小戶型別墅設計方案圖
占地:60平方米
2026二層農村新款別墅新式二層樓房設計圖,非常時尚
占地:多種戶型
開間8米的小戶型二層別墅設計圖,2開間占地不到60平
占地:56平方米左右
推薦:10套新農村自建房設計圖,2026年最新設計
閱讀次數:4825737次
100套鄉村別墅圖片大全,2026年最新設計
閱讀次數:2492203次
6款農村蓋一層平房的設計圖,10萬元就能建起來
閱讀次數:1852637次
這11個一層農村自建房別墅火爆了朋友圈!我最喜歡戶型十!你呢
閱讀次數:750268次
農村6萬元建一層小別墅圖,你敢相信嗎
閱讀次數:567686次
農村5萬塊就能自建房,6套普通房子設計圖分享,你沒看錯!
閱讀次數:419410次
8套農村漂亮三間平房圖片,非常適合在農村修建!
閱讀次數:411197次
農村自建房化糞池怎么做?附方案及施工過程
閱讀次數:391783次
農村一層三間平房設計圖,告別土氣養老房,讓人忍不住點贊
閱讀次數:350581次
新農村二層樓房圖片造價12萬,挑一套回家建房吧!
閱讀次數:349126次
