
|
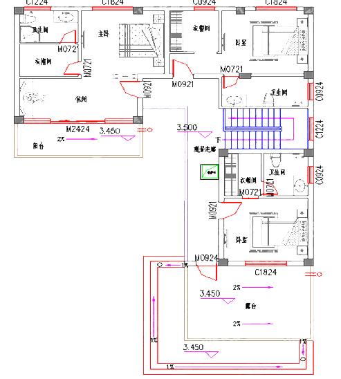
現代L型二層30萬150㎡帶觀景走廊茶室豪華套房別墅設計圖
層數:二層 開間:13.14米 進深:17.84米 首層占地面積:145.93㎡ 總建筑面積:269.30㎡ 結構形式:框架結構 主體造價:30萬 功能設計
一層平面圖 一層:觀景走廊、客廳、廚房、餐廳、臥室、書房、茶室、公衛
二層平面圖 二層:主臥(帶陽臺、休閑區、衣帽間、衛生間)、臥室(帶衣帽間、衛生間)、臥室(帶衣帽間、衛生間)、露臺 圖紙之家-專注農村別墅/自建房設計18年,集合國內200余位經驗豐富的設計師,被評為口碑最好的農村建筑設計公司! |

130平米新農村自建房屋施工建筑圖紙及效果圖
占地:132平米
一層中式三合院別墅設計圖,白墻黛瓦引領潮流
占地:177.94平方米
時尚漂亮的二層小洋樓設計圖,設計師建房都選這個方案
占地:149.27平方米
農村簡單雙拼小戶型,簡單適用,客廳中空,總占地210平方米
占地:210平方米
三層奢華歐式別墅圖片及全套設計圖,帶地下室和車庫
占地:208平方米左右
對稱型歐式別墅設計圖,穩重實用,開間18米,適合全國農村建
占地:228.2 平方米
三層新農村自建房屋設計圖紙,占地120平米左右
占地:120平方米
農村四間三層豪華別墅設計方案圖,造型輕奢雅致
占地:200平方米
150平歐式別墅房屋設計圖,外觀精美、氣派
占地:150平方米
現代田園風格一層農村別墅設計圖效果圖,帶閣樓設計
占地:220平方米
230平米歐式帶地下室三層自建別墅設計施工圖紙及效果圖
占地:230平米
農村簡單雙拼小戶型,總面積190平方米,合理的利用了每一個空間
占地:190平方米
高端農村三層歐式房屋設計圖紙,帶車庫,帶露臺
占地:163平方米
小型新中式二層小別墅圖紙設計方案,好看造價不高
占地:232.98平方米
新農村二層住宅設計圖紙,簡單別墅設計圖(含效果圖)
占地:77.6平方米
125平兩層別墅房屋設計圖,帶普通和復式兩個戶型
占地:125平方米
爆款二層自建房別墅設計圖,不追求奢華,建個溫馨實用的家
占地:100平方米
帶地下室的一層別墅設計圖,農村自建很實用
占地:192平方米
占地200平米簡歐三層農村別墅設計圖,既顯華麗又接地氣
占地:209.27平方米
造價65萬左右的三層歐式別墅房屋設計施工CAD圖紙及效果圖
占地:178平方米
推薦:10套新農村自建房設計圖,2026年最新設計
閱讀次數:4825737次
100套鄉村別墅圖片大全,2026年最新設計
閱讀次數:2492203次
6款農村蓋一層平房的設計圖,10萬元就能建起來
閱讀次數:1852637次
這11個一層農村自建房別墅火爆了朋友圈!我最喜歡戶型十!你呢
閱讀次數:750268次
農村6萬元建一層小別墅圖,你敢相信嗎
閱讀次數:567686次
農村5萬塊就能自建房,6套普通房子設計圖分享,你沒看錯!
閱讀次數:419410次
8套農村漂亮三間平房圖片,非常適合在農村修建!
閱讀次數:411197次
農村自建房化糞池怎么做?附方案及施工過程
閱讀次數:391783次
農村一層三間平房設計圖,告別土氣養老房,讓人忍不住點贊
閱讀次數:350581次
新農村二層樓房圖片造價12萬,挑一套回家建房吧!
閱讀次數:349126次
