
|
10×11農村二層平屋頂自建房20萬2廳4臥,簡單易建! 平屋頂的房子在農村很常見,這種屋頂在施工難度上相對坡屋頂低一些,而且平屋頂可以做大曬臺,農村收割回來的谷物可以放在上面晾曬,平時還能觀賞遠處的風景。喜歡花草的朋友還可以在屋頂上打造一個獨特的屋頂花園,增加生活樂趣。下面給大家分享一款10×11農村二層平屋頂自建房20萬2廳4臥,簡單易建!一起來看本戶型詳細介紹。
效果圖 層數:二層 開間:9.8米 進深:11.4米 首層占地面積:106.78㎡ 總建筑面積:211.27㎡ 結構形式:磚混結構 主體造價:20萬 室內布局及平面圖展示
一層平面圖 一層:客廳、2臥室、廚房、餐廳、公衛
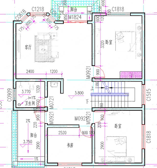
二層平面圖 二層:客廳、2臥室、書房、陽臺、衛生間 圖紙之家-專注農村別墅/自建房設計18年,集合國內200余位經驗豐富的設計師,被評為口碑最好的農村建筑設計公司! |

90平方米農村二層房屋設計圖紙(施工圖+效果圖)
占地:90平方米
二開間小戶型設計三層農村自建房方案,經濟型適合小宅基地建房
占地:107.02平方米
小戶型經濟型三層雙拼小別墅施工設計圖紙,單戶100平內
占地:150平方米
高端大氣三層歐式別墅設計圖,客廳中空,旋轉樓梯
占地:150平方米
南方北方新農村房屋設計圖紙(含效果圖),三層住宅設計圖紙
占地:164平方米
農村三層半別墅設計圖及外觀效果圖,三層半樓房設計方案推薦
占地:100平方米
兩層20萬農村自建房設計圖,經典農村建房款式,越看越有韻味
占地:160平方米
美式二層別墅設計圖,含外觀效果圖,造型精美
占地:144平方米
150平米一層7字型別墅設計方案,功能齊全舒適簡約,設計感十足
占地:154.48平方米
時尚二層現代風別墅設計圖紙,平屋頂方案13×10米
占地:98平方米
泰式風格三層小別墅設計圖,帶車庫和大露臺
占地:120平方米
農村二層中式戶型設計圖,造型古香古色,建好絕對是地標
占地:245.39平方米
一層農房別墅設計圖紙,140平方米,面寬15米
占地:140平方米
2026最好看的農村三層樓房圖片及施工圖紙,客廳寬敞
占地:120平方米
2026兩層半20多萬農村自建房圖,簡歐風格,美觀大氣
占地:120平方米
四層復式別墅設計方案,外觀氣派布局實用,舒適宜居美極了!
占地:204.64平方米
12X14米四層農村自建別墅設計圖,功能設計豐富齊全
占地:157平方米
田園風格別墅設計圖及外觀圖片,樓中樓結構
占地:140平方米
100平內簡單精致的小戶型自建房二層設計圖,旋轉樓梯
占地:97.08平方米
兩層半20萬農村自建房,占地120平米左右
占地:120平方米
推薦:10套新農村自建房設計圖,2026年最新設計
閱讀次數:4825737次
100套鄉村別墅圖片大全,2026年最新設計
閱讀次數:2492203次
6款農村蓋一層平房的設計圖,10萬元就能建起來
閱讀次數:1852637次
這11個一層農村自建房別墅火爆了朋友圈!我最喜歡戶型十!你呢
閱讀次數:750268次
農村6萬元建一層小別墅圖,你敢相信嗎
閱讀次數:567686次
農村5萬塊就能自建房,6套普通房子設計圖分享,你沒看錯!
閱讀次數:419410次
8套農村漂亮三間平房圖片,非常適合在農村修建!
閱讀次數:411197次
農村自建房化糞池怎么做?附方案及施工過程
閱讀次數:391783次
農村一層三間平房設計圖,告別土氣養老房,讓人忍不住點贊
閱讀次數:350581次
新農村二層樓房圖片造價12萬,挑一套回家建房吧!
閱讀次數:349126次
