
|
宅基地開間只有七米怎么辦?是不是就不能建出豪氣的別墅呢?很多人都認為只有大面積才能建出別墅的感覺,其實不盡然,我們就推薦三套開間只有7米多的別墅,占地面積不到120平米,兼具豪華和實用,非常好看,覺得有用的趕緊收藏吧! 戶型一:
非常霸氣的四層別墅,帶半層地下室,直接通過戶外樓梯上到二樓,羅馬柱、浮雕、沿線等裝飾清晰可見,頂層有超大的涼亭和露臺,是休閑娛樂和衣物晾曬的好去處;建筑尺寸:開間7.6米,進深14.4米,建筑占地面積114.8平米,總建筑面積392.6平米; 平面布局圖: 地下室供停車和娛樂休閑只用,可是任意改造,棋牌室、影音放映廳等均可;二層入戶是前廳和客廳、邁上兩級臺階是餐廳,最北面是一間臥室和廚房;三層陽面是一間套房,自帶陽臺和衛生間,另有起居室和兩間陰面臥室;四層陽面是頂層大露臺,預留活動室和兩間臥室的空間;
戶型二: 說實話這套并不屬于那種特別漂亮的,但是絕對是最實用的,可以供一家6口人居住不成問題。
平面布局圖: 戶型上比較齊全,一層設計有二室二廳一廚一衛,二層設計有二室一衛,和屋頂露臺,這戶適合人口較少的家庭建房。
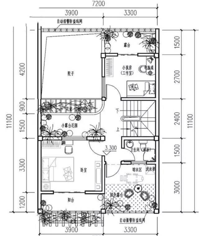
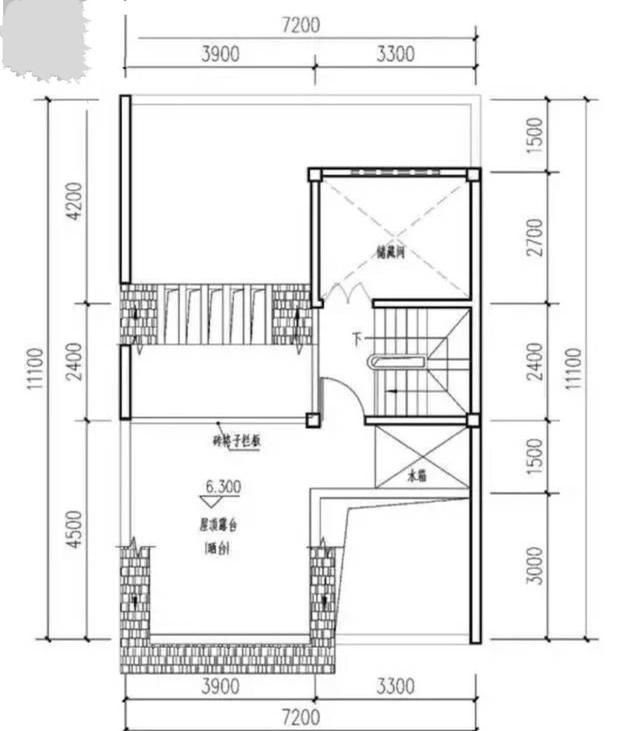
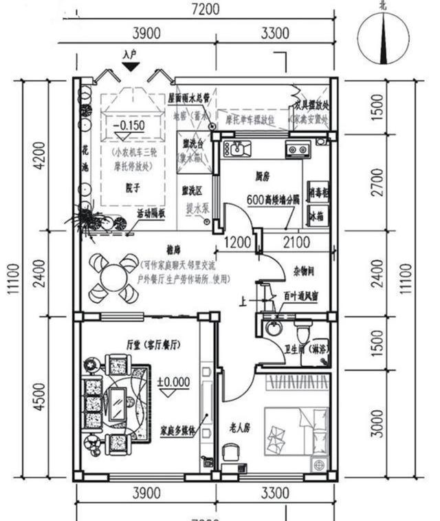
戶型三: 這款這二層坡屋頂農村自建房,外觀設計的非常有中式特色,二層屋頂的透明窗采光性能非常好,一樓還有一個小院子,可以種點花草,盡享田園生活。
平面布局圖: 一層設計有客廳,老人房、廚房、衛生間、儲藏室,還有一個小院子。二層設計有有兒童房、主臥室、露臺花園、陽臺、衛生間、洗衣機房、晾衣區等。
小別墅,真的是實用到了極點。不過要注意的是,開間小確實有很多優點,但是也不要忘了他的缺點,開間太小,進深過大,會導致室內的采光不足,所以在開間小的情況下,進深不宜過大。 圖紙之家-專注農村別墅/自建房設計18年,集合國內200余位經驗豐富的設計師,被評為口碑最好的農村建筑設計公司! |

2026新中式農村三層別墅圖,外觀漂亮,看一眼就愛上
占地:240平方米
三層平屋頂別墅房屋設計圖及外觀效果圖
占地:150平方米
140平四層復式別墅房屋設計圖,帶外觀效果圖
占地:140平方米
175平方米二層別墅設計CAD圖紙及效果圖大全,中式風格
占地:175平方米
農村四間二層小洋樓設計圖,歐式別墅、現代洋氣
占地:200平方米
新中式農村三層房屋效果圖及施工圖,140平方米左右
占地:140平方米
120平方米新農村房屋設計圖紙,新中式效果圖,3層住宅設計方案
占地:120平方米
150平二層別墅房屋設計圖,現代風格,造型精致
占地:150平方米
80平方米新農村三層房屋設計圖,新農村住宅圖紙精選
占地:80平方米
兩開間自建別墅設計圖,占地小造型簡約,不愁宅基地面寬小了
占地:118.4平方米
面寬16米三層法式別墅設計圖,設計新穎別致,建成后美不勝收
占地:162.07平方米
仿古別墅建筑設計圖,外觀效果圖+全套施工圖
占地:142平方米
豪華大氣三層農村房屋設計圖,對稱的主體設計大氣恢宏
占地:240平方米
新農村三層房屋設計圖紙大全,新農村住宅圖紙
占地:108平方米
大戶型三層別墅設計圖,高貴大氣,占地面積將近300平
占地:273.33平方米
12米乘9米占地百平一層平房戶型設計圖,布局寬敞大氣又舒適
占地:108平方米
面寬13米帶堂屋三層農村別墅圖,新中式大氣風格
占地:151.58平方米
20萬左右歐式二層小別墅設計圖,100平米和130兩個戶型
占地:多種戶型
100平客廳挑高三層樓房設計圖,復式結構
占地:100平方米
120平米三層小別墅設計方案和效果圖,端莊大氣很經典
占地:120平方米
推薦:10套新農村自建房設計圖,2026年最新設計
閱讀次數:4825737次
100套鄉村別墅圖片大全,2026年最新設計
閱讀次數:2492203次
6款農村蓋一層平房的設計圖,10萬元就能建起來
閱讀次數:1852637次
這11個一層農村自建房別墅火爆了朋友圈!我最喜歡戶型十!你呢
閱讀次數:750268次
農村6萬元建一層小別墅圖,你敢相信嗎
閱讀次數:567686次
農村5萬塊就能自建房,6套普通房子設計圖分享,你沒看錯!
閱讀次數:419410次
8套農村漂亮三間平房圖片,非常適合在農村修建!
閱讀次數:411197次
農村自建房化糞池怎么做?附方案及施工過程
閱讀次數:391783次
農村一層三間平房設計圖,告別土氣養老房,讓人忍不住點贊
閱讀次數:350581次
新農村二層樓房圖片造價12萬,挑一套回家建房吧!
閱讀次數:349126次
