
|
本套別墅設計圖共三層,開間進深12.2×13.5米,首層占地面積125㎡,房屋高度11.09米。共設有2廳5臥,車庫獨立設計與主體并排,車庫上方帶露臺供二層的主臥享用,客廳挑高設計,設有超大落地窗,尊貴華麗,外墻采用淡黃色和白色真石漆裝飾,結合文化石點綴,藍色坡屋頂與天空映襯,整體色彩雅觀精致。
效果圖 室內布局
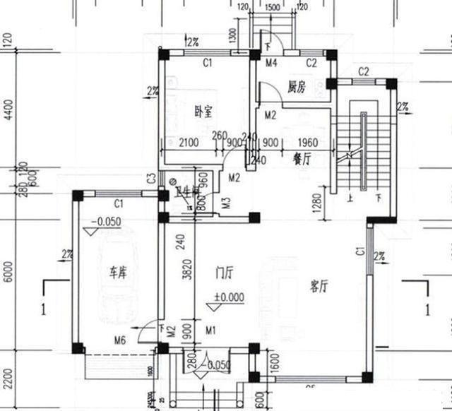
一層平面圖 一層:門廳、客廳(挑空)、車庫、廚房、臥室、衛生間、樓梯間 挑空客廳似乎是現代別墅應有的格局了,一層的客廳就是挑高樓板設計,讓室內更寬敞明亮,同時提升房屋檔次。 獨立車庫方便停放車輛,同時能提供曬臺,功能多樣化設計。 入戶門廳可以讓室內更具隱秘性,北面的廚房帶有后門,方便出入后院。
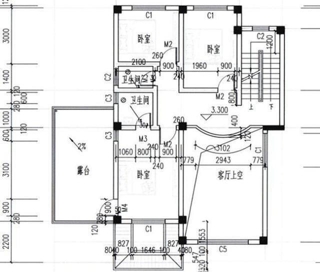
二層平面圖 二層:臥室(帶露臺、衛生間)、臥室、臥室、衛生間 二樓設有3間臥室,主臥的位置在南面,獨享露臺,還設有獨立衛生間,出臥室的門就能看到客廳上空的華麗。
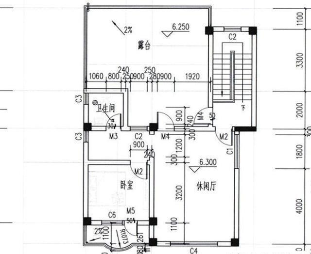
三層平面圖 三層:臥室(帶露臺、衛生間、露臺、休閑廳)、衛生間、露臺 本層是休閑與居住相結合,臥室帶有陽臺,同時還有一個門通進北面的露臺,還有獨立衛生間,擁有超大休閑廳,可以擺放健身器材,過高品質生活。 圖紙之家-專注農村別墅/自建房設計18年,集合國內200余位經驗豐富的設計師,被評為口碑最好的農村建筑設計公司! |

二層農村房屋設計圖紙,帶效果圖和全套施工方案圖
占地:多種戶型
農村二層半帶露臺別墅圖片及設計圖,戶型方案比較經典
占地:123平方米
8.5×12米四層歐式房屋設計圖紙,占地100平,落地窗中嵌入了雕花
占地:100平方米
140平方米一層歐式新農村平房設計圖,主體造價僅11萬
占地:141.218平方米
農村三層雙拼房屋建筑施工設計圖紙,帶車庫
占地:180平方米
漂亮實用三層新農村小別墅設計圖紙,占地150平米,帶露臺,從哪
占地:150平方米
一層中式仿古三合院設計圖,實用又大氣,百年不過時
占地:366.67平方米
新農村140平米樓房圖四層獨棟別墅設計圖,簡歐外觀風格設計
占地:141平方米
二層美式自建別墅設計圖,全套施工圖+外觀效果圖
占地:145平方米
140平四層復式別墅房屋設計圖,帶外觀效果圖
占地:140平方米
農村四間二層小洋樓設計圖,歐式別墅、現代洋氣
占地:200平方米
二層復式小別墅設計圖,樓中樓結構,外觀漂亮,簡單
占地:120平方米
120平米農村房屋設計圖,造價20萬左右,別墅造型結構精致
占地:120平方米
新款三層豪華大氣歐式別墅設計圖,3種戶型設計方案
占地:125平方米左右
中式一層仿古自建平房設計圖,灰墻青瓦,外觀古香古色
占地:168.48平方米
面寬13米二層鄉村自建別墅戶型圖,帶堂屋和露臺
占地:135.47平方米
三層兄弟雙拼別墅設計圖,外觀大氣漂亮,顏色搭配協調,一層為
占地:270平方米
80多平米二層小型自建房設計圖,經濟舒適別具一格
占地:84.48平方米
150平米農村兩層樓房設計圖,簡單大氣時尚
占地:150平方米
三層現代平頂別墅設計圖,簡約時尚百看不厭,外觀令人驚艷!
占地:125.142平方米
推薦:10套新農村自建房設計圖,2026年最新設計
閱讀次數:4825737次
100套鄉村別墅圖片大全,2026年最新設計
閱讀次數:2492203次
6款農村蓋一層平房的設計圖,10萬元就能建起來
閱讀次數:1852637次
這11個一層農村自建房別墅火爆了朋友圈!我最喜歡戶型十!你呢
閱讀次數:750268次
農村6萬元建一層小別墅圖,你敢相信嗎
閱讀次數:567686次
農村5萬塊就能自建房,6套普通房子設計圖分享,你沒看錯!
閱讀次數:419410次
8套農村漂亮三間平房圖片,非常適合在農村修建!
閱讀次數:411197次
農村自建房化糞池怎么做?附方案及施工過程
閱讀次數:391783次
農村一層三間平房設計圖,告別土氣養老房,讓人忍不住點贊
閱讀次數:350581次
新農村二層樓房圖片造價12萬,挑一套回家建房吧!
閱讀次數:349126次
