
|
現在農村很多人家里不僅在城市買了屬于自己的房子,而且同樣還在老家該一套新房,并且私家車也開起來了。人們生活水平提上去了,農村自建房的建設也進步飛快。去年回家過年就發現村子里多了好些兩層的小洋樓別墅,讓我是越來越喜歡這個小山村了,沒有城市的喧囂吵鬧和勾心斗角,慢節奏的生活方式,和諧的左鄰右舍,讓我就想一直賴在這個安靜的小村莊!今天小編給你們分享兩款適合在農村自建別墅的圖紙! 農村自建別墅一 基本信息: 占地尺寸:14X8.6米; 占地面積:121.9平方米; 建筑面積:224.2平方米; 結構類型:磚混結構; 建筑層數:2層; 參考造價:18萬左右;
歐式復古風格的兩層框架結構自建別墅,深棕色瓦面坡屋頂搭配一層文化石的墻面,二層貼的土黃色瓷磚,帶個大露臺設計,門口的門廳澆筑了兩根羅馬柱入戶一半以上的開窗設計,兩側都有開窗設計,南北通透的戶型。
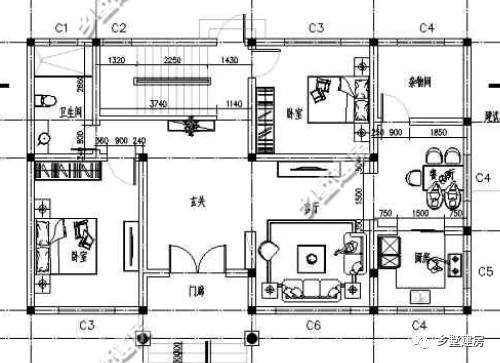
一層平面設計圖:入戶平臺進門有個玄關,玄關右邊是客廳,一樓有三間臥室,除了餐廳廚房衛生間還有個雜物間。
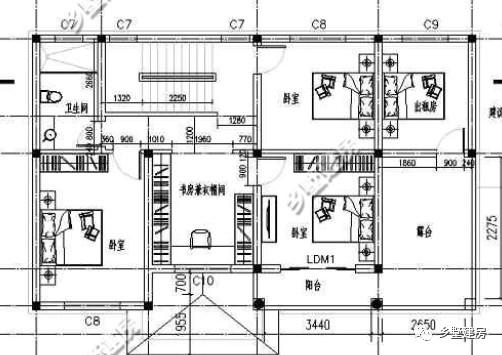
二層平面設計圖: 二樓四間臥室 一個大露臺設計,物資正中間還設計了書房衣帽間。 農村自建別墅二 占地尺寸:10.5X10.7米; 占地面積:107平方米; 建筑面積:214.1平方米; 結構類型:磚混結構; 建筑層數:2層; 主體造價:18萬左右; 層高:8.7米;
兩層磚混結構藍色瓦面的坡屋頂設計,一層墻面貼的換色瓷磚,二層墻面刷的黃色乳膠漆。門口用預制好的方形羅馬柱模板做了個入戶平臺。
一層平面設計圖:入戶平臺劍門設計了玄關,房子右邊是客廳,兩間臥室,還設計了旋轉樓梯,最里邊往左是廚房餐廳衛生間。
二層平面設計圖:二樓一共三間臥室,有個書房和客廳。 日常分享:
圖紙之家-專注農村別墅/自建房設計18年,集合國內200余位經驗豐富的設計師,被評為口碑最好的農村建筑設計公司! |

新中式農村三層樓房設計圖,帶地下室,主體建筑面積110平米
占地:110平方米
雙拼小別墅設計圖紙(含效果圖),二層別墅設計方案精選
占地:130平方米
最新款農村三層自建房戶型設計圖及外觀圖片照片,鄉村蓋房精選
占地:112.56平方米
歐式四層(三層半)獨棟別墅設計圖復式,設計豪華時尚
占地:194平方米
農村一層大別墅施工圖,18米乘12米,讓生活充滿儀式感
占地:216平方米
經典四合院別墅設計圖,復式挑空客廳讓四合院更高端
占地:175平方米左右
農村20萬左右三層住房設計圖,小宅基地首選
占地:95平方米
新農村住宅設計圖集,三層房屋設計圖紙展示
占地:110平方米
農村二層帶閣樓四間別墅設計圖,外觀美觀,戶型實用
占地:175平方米
簡單時尚二層住宅設計圖紙,簡單的設計,不平凡的視覺感受
占地:110平方米
二層半農村小別墅設計方案圖,南方設計圖精選
占地:82平方米
好看又簡單的二層樓房設計,經濟實用型的農村小別墅
占地:135平方米
100平方米新農村二層別墅設計圖紙,帶屋頂露臺
占地:100平方米
農村新款二層中式別墅設計圖效果圖,帶堂屋設計
占地:144平方米
最新網紅二層別墅,寬敞時尚沉穩大氣,布局實用正好滿足您的需
占地:110平方米
新農村二層住宅設計圖紙,簡單別墅設計圖(含效果圖)
占地:77.6平方米
占地120平米清新脫俗簡單二層別墅設計方案,含效果圖
占地:119.01平方米
精致時尚一層雙拼別墅設計圖,造價實惠,起居互不打擾
占地:369.54平方米
鄉村簡約經濟型二層別墅設計圖紙(效果圖+全套施工方案)
占地:145平方米
農村四層樓房設計圖,復式結構、客廳中空,外觀效果圖+全套圖
占地:130平方米
推薦:10套新農村自建房設計圖,2026年最新設計
閱讀次數:4825737次
100套鄉村別墅圖片大全,2026年最新設計
閱讀次數:2492203次
6款農村蓋一層平房的設計圖,10萬元就能建起來
閱讀次數:1852637次
這11個一層農村自建房別墅火爆了朋友圈!我最喜歡戶型十!你呢
閱讀次數:750268次
農村6萬元建一層小別墅圖,你敢相信嗎
閱讀次數:567686次
農村5萬塊就能自建房,6套普通房子設計圖分享,你沒看錯!
閱讀次數:419410次
8套農村漂亮三間平房圖片,非常適合在農村修建!
閱讀次數:411197次
農村自建房化糞池怎么做?附方案及施工過程
閱讀次數:391783次
農村一層三間平房設計圖,告別土氣養老房,讓人忍不住點贊
閱讀次數:350581次
新農村二層樓房圖片造價12萬,挑一套回家建房吧!
閱讀次數:349126次
