
|
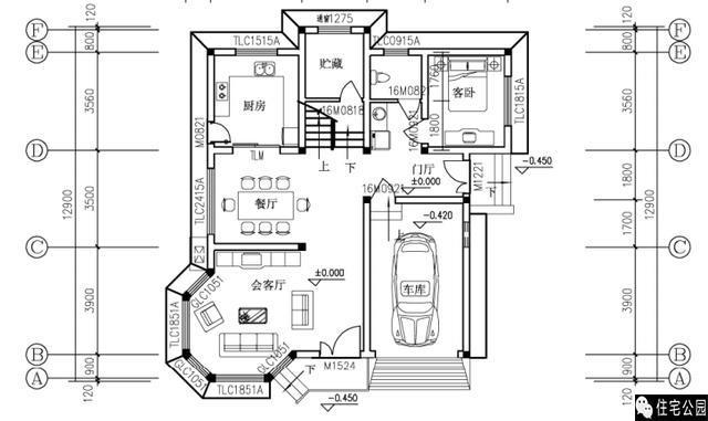
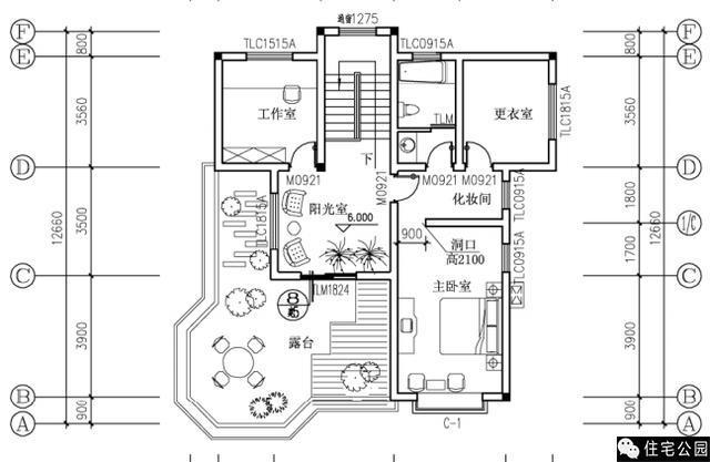
不管是在城里還是在鄉下,能住進別墅里是每一個人的夢想。如果說在城里買一套別墅這可能對大多數人來說有點困難,可是對于咱農村人來說,在村里建一套鄉村別墅可能就相對容易實現一些了。 ![]() 設計師的這套作品,紅色坡屋頂、紅色飄窗,層次分明,有設計感。米黃色和紅色的外墻搭配和諧,顯得也很干凈。要說別墅最突出的特點恐怕就是隨挑空客廳而起的戶型采光窗了吧,它讓住宅一下子高達上了起來。 立面圖: ![]() 平面布局圖: 此戶型坐北朝南,入戶口有4個,南側為正入戶門,進門是會客廳,會客廳在弧形采光窗的位置,并且是挑空設計,能180度接受陽光的照射。東側也有一個入戶門,從這個門進來可以直接去往臥室。其次,也可以從車庫直接進入室內。最后一個在廚房,這樣有利于油煙的排放,也方便夏天進行戶外就餐。 ![]() 此戶型每層一個臥室,可實現隔代居住,各有各的私人空間,又互為一個整體,這樣的戶型更利于家庭和睦,和諧共處,幸福安康。如果說一層方便適合住父母,那么二層有家庭廳、書房、棋牌室就很適合子女居住。 ![]() 三層是主臥,它是一個套間設計,室內有化妝間、衛生間和更衣室,也就是我們所說的衣帽間,主人房私密性好,獨立性強。此層還有配套的工作室和陽光房,陽光房外面還有露臺,露臺上有桌椅板凳,也有盆栽、綠植,工作累了來這里放松放松心情,喝喝茶,享受享受寧靜致遠的生活,這該是多么美好的一種享受。 ![]() 坡屋頂平面布局圖: ![]() 設計師的這套作品,你怎么看呢? 轉載請注明出自別墅設計網:http://m.bjcyqiyejia.com/ 千套別墅設計帶別墅圖片 |

105平方米新農村三層別墅設計圖,全套CAD建筑圖+效果圖
占地:105平方米
新中式帶露臺30萬左右農村三層別墅,客廳中空
占地:110平方米
帶院子的四間二層別墅房屋設計圖,帶獨立車庫
占地:350平方米
現代風格二層別墅設計圖,外觀時尚、大氣
占地:153平方米
農村二層半樓房設計圖及效果圖,歐式風格
占地:150平方米
精致典雅的90平和100平方米二層樓房圖紙,藏不住的經典
占地:多種戶型可選
165平方米河南二層平屋頂房屋設計圖紙帶外觀效果圖17x11米
占地:164平方米
現代風格建房圖紙二層別墅設計方案,外觀百看不厭
占地:171.6平方米左右
經典農村二層小別墅設計圖紙帶露臺(含外觀效果圖)
占地:110平方米
新農村兩層樓房設計圖,占地110平米,戶型簡單實用
占地:110平方米
雙拼豪華高端三層別墅設計圖,外觀效果圖大氣
占地:300平方米
二層新農村自建房設計圖,帶外觀效果圖
占地:140平方米
新農村帶陽臺三層樓房圖紙,占地180平米左右,豪華大氣
占地:180平方米
170平方米農村二層房屋設計施工圖,外觀圖時尚、好看
占地:172平方米
農村一層7字型平房別墅設計圖,“L”自行戶型,外觀簡約低調
占地:213.39平方米
兄弟四間三層雙拼別墅設計圖,造價40萬左右
占地:210平方米
125平方米新農村三層自建別墅施工設計圖,13x10米
占地:125平方米
農村兄弟雙拼二層四合院別墅設計圖,戶型左右對稱
占地:430平方米
帶電梯高端四層別墅房屋設計圖,外觀圖大氣、上檔次
占地:220平方米
經典二層農村自建房屋別墅設計圖紙,占地110平米左右
占地:110平方米
11×10造價25萬帶神位平頂三層自建房設計圖
閱讀次數:29678次
2021年最流行的10套經典農村別墅,最愛那一套?
閱讀次數:25940次
進深8.5米,開間12米,帶堂屋的樓房設計圖怎么做?
閱讀次數:23817次
18萬搞定的農村二層別墅,詳細施工過程實拍!含別墅設計圖!
閱讀次數:17744次
5款帶落地窗的農村別墅,大氣的別墅就應該是這個樣子
閱讀次數:17217次
15套2017年最新潮二層農村別墅,這樣蓋既實用又上檔次!
閱讀次數:12834次
2021農村建的最多的2款二層小別墅戶型,爆款是有理由的
閱讀次數:11876次
農村自建房這樣預埋水電管,老師傅說規范又實用
閱讀次數:11471次
9X12米二層農村別墅,不超過規定面積還能有小院
閱讀次數:10618次
農村自建房打地基的費用是多少,需要注意哪些問題?
閱讀次數:10549次
