
|
通常情況下,農村的宅基地都是鄰里之間相連,所以在建房子的時候左右不能開窗。今天為大家介紹的這個樓房設計圖正是左右無窗的戶型。坡屋頂三層有前后兩個露臺,外墻用的是較為經濟的真石漆和文化石,很適合農村建造。
立面圖:
平面布局圖: 此戶型開間11.7米,進深10.14米,坐北朝南,入戶門在南側,進門是玄關,玄關左側是老人房,右側是客廳,前面就是餐廳和廚房,從北側進來還有一個車庫。
二層相對安靜,多為休息性用間。設有3個臥室、1個起居室、2個衛生間和一個書房。不管是休息還是讀書、學習,都能享受一個寧靜舒適的環境。為了增加室內生機,還可以在起居室的陽臺上擺放些盆栽,居室內就會充滿朝氣。
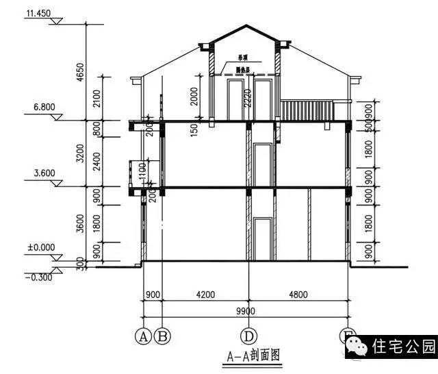
三層是2個備用間和2個露臺。根據自己的需求,備用間可做健身房、娛樂室、舞蹈房,或者隨著家庭人口的增多,可以做臥室等;因為此戶型是坡屋頂的設計,所以其中的一個露臺可做晾曬區域,另一個露臺可以作為戶外休閑平臺。
坡屋頂平面圖:
怎么樣?這個戶型是不是很適合農村建造? 轉載請注明出自別墅設計網:http://m.bjcyqiyejia.com/ 千套別墅設計帶別墅圖片 |

經典小戶型二層新農村房屋設計圖紙,客廳中空,造價20萬
占地:94平方米
90平方米農村二層房屋設計施工圖紙及效果圖,11x8.5米
占地:90平方米
三層獨棟帶露臺房屋設計圖,含外觀圖片大全
占地:110平方米
230平米歐式帶地下室三層自建別墅設計施工圖紙及效果圖
占地:230平米
新款鄉村二層半別墅設計圖紙帶效果圖,三層別墅外觀圖片大全
占地:108.795平方米
130平方米新農村兩層房屋設計及外觀圖,11x12米
占地:130平方米
農村三層樓房設計圖及圖片,客廳挑空,優化室內采光
占地:140平方米
130平米徽式古典風格的三層自建房屋別墅設計圖紙,戶型合極佳,
占地:130平米
地中海風格二層別墅設計圖方案,含外觀效果圖
占地:130平方米
二層農村自建小別墅設計圖,歐式風格,占地160平方米
占地:160平方米
兩層樓房設計圖,兩層新農村樓房圖紙,外觀典雅古樸
占地:140平方米
農村18萬元二層小樓圖,占地120平面,戶型緊湊合理
占地:120平方米
二層小別墅設計方案圖,平頂設計帶cad施工圖和外觀效果圖
占地:147平方米
新農村三層別墅設計圖紙及效果圖,全套cad建筑圖
占地:119平方米
新農村二層帶庭院的小別墅設計圖及效果圖
占地:137平方米
簡單農村二層自建房子設計圖,主體18萬就能建好,太心動了!
占地:124.53
50萬以內的歐式三層房屋別墅施工設計圖紙及效果圖
占地:169平方米
160平方米農村二層別墅設計效果圖帶CAD建筑圖
占地:160平方米
新中式二層雙拼樓房設計圖,單戶面積100平米左右,實用美觀
占地:200平方米
進深15米新農村三層房屋設計圖紙,農村住宅設計圖集
占地:128平方米
11×10造價25萬帶神位平頂三層自建房設計圖
閱讀次數:29678次
2021年最流行的10套經典農村別墅,最愛那一套?
閱讀次數:25940次
進深8.5米,開間12米,帶堂屋的樓房設計圖怎么做?
閱讀次數:23817次
18萬搞定的農村二層別墅,詳細施工過程實拍!含別墅設計圖!
閱讀次數:17744次
5款帶落地窗的農村別墅,大氣的別墅就應該是這個樣子
閱讀次數:17217次
15套2017年最新潮二層農村別墅,這樣蓋既實用又上檔次!
閱讀次數:12834次
2021農村建的最多的2款二層小別墅戶型,爆款是有理由的
閱讀次數:11876次
農村自建房這樣預埋水電管,老師傅說規范又實用
閱讀次數:11471次
9X12米二層農村別墅,不超過規定面積還能有小院
閱讀次數:10618次
農村自建房打地基的費用是多少,需要注意哪些問題?
閱讀次數:10549次
