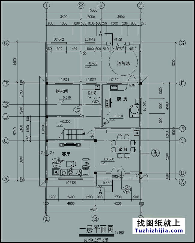
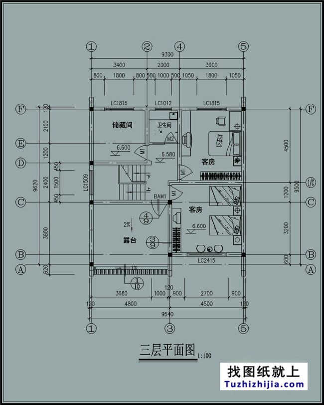
建筑占地面積:9.3m*9.7m;
建筑層數:三層;
建筑高度:11.6米(含屋頂)坡屋頂;
設計功能:
一層:沼氣池、烤火間、衛生間、廚房、堂前、客廳;
二層:衛生間、書房、次臥室、客廳、主臥室;
三層:儲藏間、衛生間、2間客房、露臺。
圖紙目錄:
建筑:一層平面圖、二層平面圖、三層平面圖、屋頂平面圖、正立面圖、背立面圖、左側立面圖、右側立面圖、A-A剖面圖、底層樓梯平面圖、二層樓梯平面圖、頂層樓梯平面圖、樓梯欄桿大樣、扁鐵預埋大樣、水平欄桿大樣、樓梯B-B剖面圖、門頂雨篷詳圖、窗頂雨蓬詳圖、散水坡、室外排水溝、臺階詳圖、露臺泛水、露臺門檻、穿墻管防水構造大樣、穿樓管防水構造大樣、衛生間大樣、露臺欄桿詳圖、門窗匯總表、窗套大樣、后院圍墻大樣、圖紙目錄、建筑施工圖設計總說明;
結構:結構設計總說明、構造詳圖(一)、構造詳圖(二)、基礎平面圖、節點大樣、3.470梁平法施工圖、二層樓面板配筋平面圖、6.570梁平法施工圖、頂層樓面板配筋平面圖、衛生間周邊梁翻邊詳圖、屋頂梁平法施工圖、屋面板配筋平面圖、板內折角構造、樓梯一層結構平面圖、樓梯二層結構平面圖、樓梯三層結構平面圖、樓梯頂層結構平面圖、樓梯結構剖面、門頂雨篷配筋、窗頂雨篷配筋;
電氣:電氣設計說明、圖例、圖紙目錄、配電箱系統圖、弱電系統圖、一層配電平面圖、二層配電平面圖、三層配電平面圖、屋頂防雷平面圖、基礎接地平面布置圖、一層弱電平面圖、二層弱電平面圖、三層弱電平面圖;
給排水:圖紙目錄、給排水設計說明與圖例、一層給排水平面圖、二層給排水平面圖、三層給排水平面圖、屋頂給排水平面圖、廚房廢水系統圖、衛生間大樣圖、給水系統圖、污水系統圖、雨水系統圖、1張效果圖。
本工程為農村徽派房屋,總建筑面積為252.28平方米,占地面積為102.91平方米,用地面積110平方米,總建筑高度為9.800米(檐口高度),建筑耐火等級設計為二級,主要結構形式為磚混結構。設計使用年限為五十年,安全等級二級,屋面防水Ⅱ級,防雷為三類。
所有圖紙是經過圖紙之家專業工程師詳細校對后,確認無誤發布的,本套圖紙可以直接用于建房施工,專業齊全,無需其他額外圖紙,請您放心!




































































































