圖紙介紹:135平方米新農村實用型三層別墅設計CAD圖紙帶效果圖,獨立廚房、餐廳,簡單大氣的歐式風格農村別墅,暖色的外立面,搭配金色的線條花飾,使整個立面富麗又精致。坡屋頂與平層頂的結合,使整個建筑層次分明。室內廚房與餐廳隔離開來,廊道的設計起到很好的承接的作用。雖然面積不大,但整個室內空間感非常大
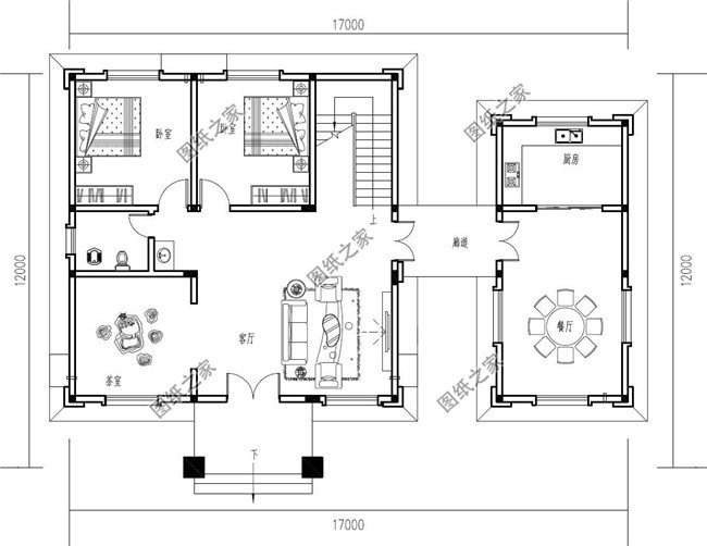
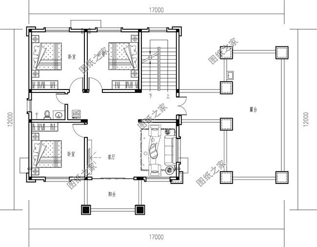
占地面積:17m*12m,134平方米左右;
建筑層高:三層;
建筑高度:12.57米(含屋頂);
設計功能:
一層戶型:客廳、餐廳、廚房、廊道、茶室、臥室x2、衛生間;
二層戶型:客廳、臥室x3、衛生間、陽臺、露臺;
三層戶型:臥室x2、KTV、衛生間、露臺;
圖紙目錄:
建 筑 圖:建筑設計說明、一層平面圖、二層平面圖、三層平面圖、屋頂平面圖、正立面圖、背立面圖、左立面圖、右立面圖、1-1剖面圖、樓梯大樣圖、門斗大樣圖、節點大樣圖、門窗詳圖、門窗表等;
結 構 圖:結構設計說明、基礎平面布置圖、基礎大樣圖、一層梁結構平面圖、二層梁結構平面圖、三層梁結構平面圖、屋頂梁結構平面圖、二層板結構平面圖、三層板結構平面圖、屋面板結構平面圖、樓梯大樣圖、節點大樣圖等;
給排水圖:給排水設計說明、一層給排水平面圖、二層給排水平面圖、三層給排水平面圖、屋頂給排水平面圖、衛生間大樣圖、給排水系統圖等;
電 氣 圖:電氣設計說明、配電系統圖、弱電系統圖、配電干線系統圖、一層照明平面圖、二層照明平面圖、三層照明平面圖、一層插座平面圖、二層插座平面圖、三層插座平面圖、一層弱電平面圖、二層弱電平面圖、三層弱電平面圖、接地平面圖、屋頂防雷平面圖等;
本套方案包含全套A3設計圖+彩色效果圖。






































































































