
建筑占地面積:8.4m*11.0m;
建筑層數:三層;
建筑高度:11.39米(含屋頂)坡屋頂;
設計功能:
一層:老人房、廚房、廁所、餐廳、客廳;
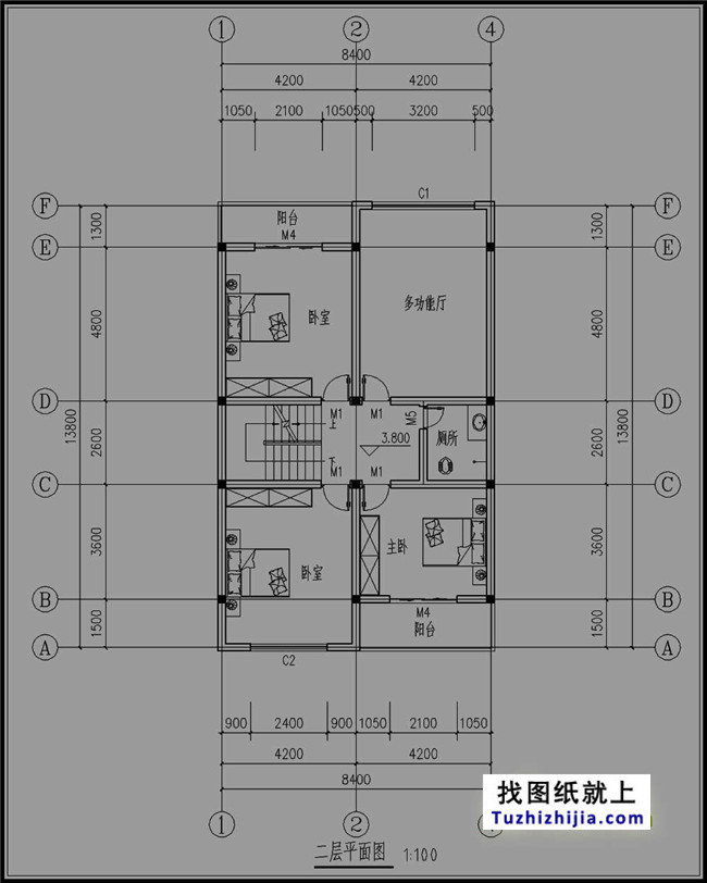
二層:臥室、主臥、陽臺、衛生間、臥室、多功能廳、陽臺;
三層:露臺、娛樂室、露臺;
圖紙目錄:一層平面、二層平面圖、三層平面圖、屋頂平面圖、東立面圖、西立面圖、南立面圖、北立面圖、4-1剖面圖、門窗大樣圖、效果圖;









建筑占地面積:8.4m*11.0m;
建筑層數:三層;
建筑高度:11.39米(含屋頂)坡屋頂;
設計功能:
一層:老人房、廚房、廁所、餐廳、客廳;
二層:臥室、主臥、陽臺、衛生間、臥室、多功能廳、陽臺;
三層:露臺、娛樂室、露臺;
圖紙目錄:一層平面、二層平面圖、三層平面圖、屋頂平面圖、東立面圖、西立面圖、南立面圖、北立面圖、4-1剖面圖、門窗大樣圖、效果圖;















一、圖紙均為高清藍圖,包含全套設計圖,交給施工隊可直接建造;
二、圖紙每個數據都是環環相扣的,修改工作量大,還容易出錯,不支持修改服務;
三、如果您對圖紙的尺寸、戶型不滿意,我們可以按您的要求進行定制;
四、圖紙通俗易懂,只需按圖施工即可1比1還原效果圖,我們還提供在線指導服務。
三層平頂現代別墅設計圖,實用不花冤枉錢,建好倍有面子
造價:26萬
建一棟就成了村里的門面擔當!三層歐式別墅,左右對稱太氣派
造價:41萬
11x13米兩層半現代風別墅設計圖,??看過的都后悔建早了!
造價:34萬
農村建房的“面子天花板”!新中式簡歐結合三層別墅,進門就被
造價:86萬
10×12米三層別墅戶型,挑空大客廳設計,圈粉無數的爆款方案
造價:24萬
新中式三層別墅,旋轉樓梯+挑空客廳,高級感拉滿
造價:28萬
驚艷全村的三層別墅設計圖,12×16米美觀大氣布局超合理
造價:41萬
建完被夸半年!現代風三層農村別墅,顏值抗打還百看不厭
造價:29萬
農村自建房別再做傳統客廳!“客廳+茶室”一體設計,寬敞明亮
造價:32萬
三層帶挑空客廳旋轉樓梯,農村這樣建別墅高檔大氣
造價:28萬
帶架空層的三層農村別墅設計火了!雨季不怕返潮
造價:38萬
高端大氣三層別墅設計圖,建好就是村里最靚的
造價:30萬
帶配房的農村三層別墅設計圖,全家享精致生活
造價:32萬
面寬12米新中式三層別墅設計圖,回家建房就選它,全家人都愛的
造價:36萬
95平經濟適用三層農村小別墅設計圖,二開間推薦爆款戶型
造價:24萬
帶地下室KTV三層農村自建別墅設計圖,12米乘12.5米
造價:41萬
平屋頂12米寬別墅三層設計圖,平頂照樣建的漂亮
造價:37萬
青瓦仿古中式大型三層別墅設計圖,韻味十足復古大氣
造價:54萬
2026最新款獨棟中西雙餐廳三層別墅設計圖,精巧實用好看不貴
造價:65萬
180平方現代風三層別墅設計圖,經典大氣,百看不厭
造價:49萬
農村自建二層半樓房效果圖,美觀大氣布局合理,很適合農村人自
造價:35萬
新中式農村自建房三層設計圖,外觀布局均滿分
造價:29萬
經典三層別墅設計圖,時尚典雅美觀大氣,新農村自建的理想之選
造價:30萬
占地百平農村三層戶型方案,簡約實用,獨具特色,理想新居等你
造價:33萬
平頂三層別墅設計方案,簡潔舒適大氣通透,12乘9米,打造理想住
造價: 22萬
歐式三層別墅設計圖,低調奢華,實用布局,好設計不容錯過
造價:31萬
大戶型三層別墅設計圖,高貴大氣,占地面積將近300平
造價:68萬
120平方米三層歐式別墅設計圖,進門就是旋轉樓梯
造價:26萬
獨立餐廳廚房,平屋頂現代風格三層別墅設計圖
造價:32萬
新徽派農村三層小別墅設計圖,白墻黛瓦中式風,12米乘11米
造價:33萬
農村三層樓房設計圖及效果圖,復式磚混結構
造價:35萬左右
在農村30萬可以建造的三層別墅款式,帶別墅外觀圖片
造價:30萬左右
新農村三層帶露臺自建房設計施工圖,農村自建別墅推薦
造價:22-28萬
新中式復式三層別墅設計圖紙,最美的新中式別墅
造價:40萬-45萬
三層歐式豪華別墅設計方案,全套圖紙+效果圖
造價:50萬左右
120平方三層房子設計圖,漂亮實用農村自建小別墅設計圖
造價:30萬左右
新款漂亮農村三層別墅建筑設計圖紙帶效果圖片,3種戶型
造價:28萬
農村30萬別墅款式三層設計圖紙,帶地下儲藏室,挑空客廳
造價:30萬左右
100平客廳挑高三層樓房設計圖,復式結構
造價:27~30萬
簡歐風格別墅設計圖帶外觀效果圖,三層140平米戶型方案
造價:50~54萬
三層三間別墅設計圖方案,含外觀圖片,自建推薦
造價:30萬左右
人氣頗高的三層新中式別墅方案,五種戶型,五種尺寸
造價:40-60萬
三層帶車庫農村別墅設計圖紙(含外觀效果圖)
造價:35~39萬
30萬農村小別墅設計圖片,30萬別墅設計戶型推薦
造價:30萬左右
歐式豪華三層別墅設計圖,占地面積170平米,高端大氣帶露臺
造價:50萬-60萬
新中式帶露臺30萬左右農村三層別墅,客廳中空
造價:30萬左右
120平米農村40萬三層別墅自建房款式,簡歐風格
造價:40萬左右
新農村中式三層四合院別墅設計戶型圖,農村自建四合院效果圖
造價:60萬左右
80-90平米自建樓房設計圖,農村小別墅經典戶型圖
造價:23萬左右
復式、旋轉樓梯三層別墅設計方案圖,戶型合理、實用
造價:40萬左右
現代別墅設計圖紙帶效果圖,85平、100平、145平三個戶型方案
造價:24萬左右
占地70平方米的三層獨棟別墅設計圖,小戶型自建房屋效果圖
造價:18萬左右
農村房子設計圖三層獨棟別墅方案,占地130平方米
造價:35萬左右
三層別墅設計施工圖紙(含外觀效果圖)帶大露臺
造價:30~34萬
115平旋轉樓梯三層復式別墅房屋設計圖,含外觀效果圖
造價:30~34萬
2026新款三層小別墅設計圖,占地150平米,帶地下室
造價:35-40萬左右
農村三層帶車庫、帶露臺別墅設計圖,經典自建別墅設計方案
造價:42~49萬
預算10萬的簡單二層半別墅房屋設計圖,外觀簡單,造價低
造價:10萬左右
歐式農村三層小別墅設計圖,占地120平米,客廳中空,空間利用率
造價:30萬左右
兩層半20多萬復式農村自建房設計圖,經典不過時戶型
造價:25萬左右
新中式三層樓房設計圖,外觀精致布局也是相當的樸實
占地:140平方米
250平方米農村三層別墅設計圖紙及效果圖大全,18.3x15米
占地:247平方米
12x12農村三層別墅設計圖,自建房屋推薦戶型
占地:148平方米
偏徽派風格民居三層農村住宅設計圖,白墻黛瓦的古雅簡潔
占地:101.01平方米
帶車庫徽派風格三層別墅房屋設計圖,新農村住宅設計推薦
占地:140平方米
140平方米現代偏中式實用型三層房屋設計圖紙,新農村建房推薦
占地:142平方米
三層新農村住宅設計圖及效果圖,三層樓房設計圖展示
占地:140平方米
復式三層帶車庫簡歐小別墅設計圖,農村三層房屋設計圖
占地:126平方米
農村三層自建房子圖紙設計方案,開間11米左右
占地:151.96平方米
160平方米三層帶大露臺的復式別墅設計圖紙
占地:155平方米
田園輕奢三層帶露臺的鄉村別墅設計圖紙,11x10米
占地:106.64平方米
300平大戶型豪華三層別墅設計圖,帶總統套房
占地:300平方米
農村二層半樓房效果圖及全套設計圖紙,自建房簡單實用
占地:121平方米
新式帶挑空客廳三層鄉村別墅設計圖,占地170平左右
占地:170平方米
2026兩層半20多萬農村自建房圖,簡歐風格,美觀大氣
占地:120平方米
帶車庫,帶露臺的三層復式樓房設計圖,新農村房屋方案推薦
占地:140平方米
100平新農村三層復式房屋別墅設計圖紙,造價30萬左右
占地:106平方米
帶架空層的農村二層別墅設計方案,造型大氣漂亮
占地:176平方米
新農村私人別墅建筑設計施工圖,全套別墅設計圖紙
占地:多種戶型
150平米簡單大方的三層農村自建房設計圖,坡層頂,色彩鮮明,布
占地:150平方米
