
建筑占地面積為:10.2m*11.7m;
建筑層數:三層;
建筑高度:12.47m(含屋頂);坡屋頂;
設計功能:
一層:老人房、門廳、餐廳、客廳、衛生間、工具間;
二層:客臥、陽臺、客臥、書房、衛生間、主臥、走入式衣柜、主衛;
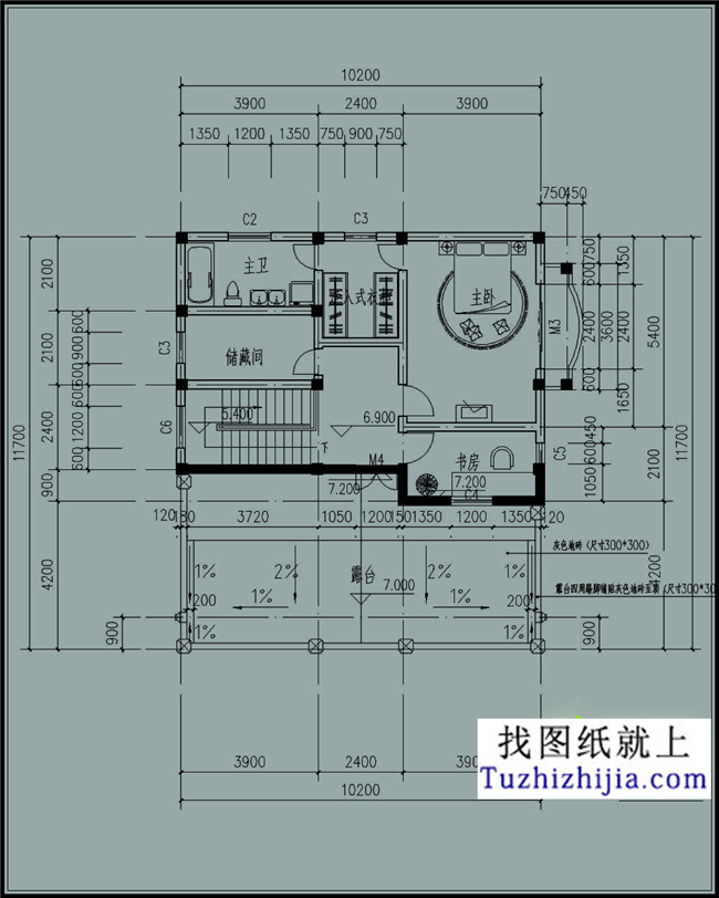
三層:露臺、書房、主臥、走入式衣柜、主衛、儲藏間;
圖紙目錄:一層平面圖、二層平面圖、三層平面圖、東、西立面圖、屋頂平面圖、南、北立面圖、露臺欄桿、短柱作法、正視圖、左視圖、右視圖、深米黃色剁斧石作法、樓梯尺寸、露臺面作法(分倉縫間距小于4米,縫內灌PVC油膏,高出表面5毫米)、首層地面作法、墻身作法(外墻為涂料)、一層墻身作法(外墻為剁斧石/面磚)、屋頂作法、露臺四周作法、南面鐵藝欄桿作法、左視圖、正視圖、右視圖、陽臺作法、東面鐵藝欄桿作法、左視圖、正視圖、右視圖、門窗大洋、節點詳圖;

































































































