圖紙介紹:本戶型秉承傳統并結合現代建筑手法,充分考慮農村生活和生產的需求,功能分區合理,兩院落的設計,增添了現代家庭生活的趣味性和多樣性,體現地方農村建筑的特色。
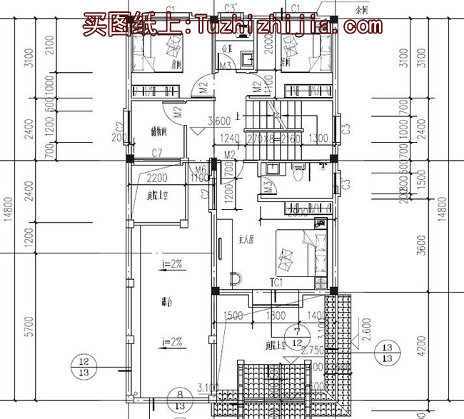
占地面積:8m*14.8m,帶院子占地120平方米左右;
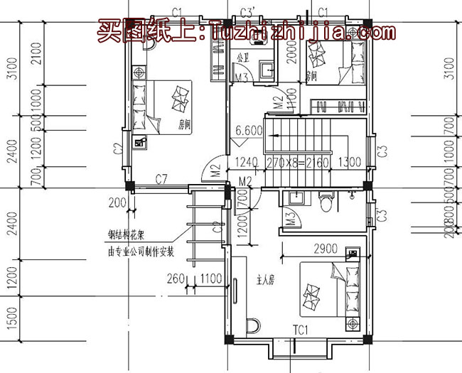
建筑層高:三層;
建筑高度:11.1米(含屋頂);
設計功能:
一 層:客廳、餐廳、廚房、臥室、衛生間、前院、側院、農具間(儲藏間)、車庫;
二 層:主臥(帶衛生間)、臥室x2、衛生間、儲藏間、露臺;
三 層:主臥(帶衛生間)、臥室x2、衛生間、露臺;
共計61張施工圖+1彩色效果圖,拿到即可施工。

































































































