圖紙介紹:新農村雙拼堂屋共用的兄弟自建別墅施工設計圖紙及效果圖,這款三層歐式雙拼別墅十分的氣派適合兄弟兩個一起建造,村里人看了一定會說很有出息。主體使用暖白色真石漆裝飾,一層是淺褐色面磚,屋頂是藍色磚瓦。多陽臺多露臺的設計讓別墅很有層次感,大面積落地窗和金色的雕花讓別墅更加具有觀賞性,共用堂屋設計符合農村生活習俗
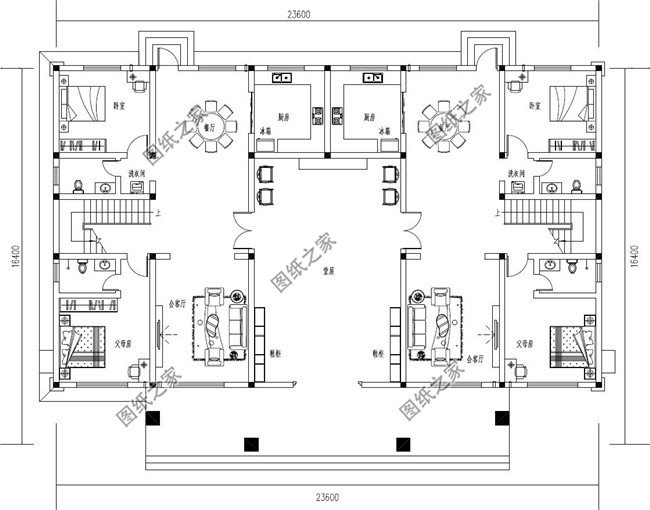
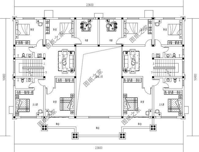
占地面積:23.6m*16.4m,334平方米左右,單戶167平左右;
建筑層高:三層;
建筑高度:12.87米(含屋頂);
設計功能:
一層:堂屋、會客廳、餐廳、廚房、父母房(帶衛生間)、臥室、洗衣間、衛生間;
二層:堂屋上空、起居室、書房、臥室(帶衛生間)、臥室x3、衛生間、洗衣間、陽臺;
三層:共用活動室、休閑區、臥室x2、書房、洗衣間、衛生間、露臺;
圖紙目錄:
建 筑 圖:建筑施工說明、建筑構造設計說明、一層平面圖、二層平面圖、三層平面圖、屋頂平面圖、正立面圖、背立面圖、左立面圖、右立面圖、1-1剖面圖、樓梯大樣圖、節點大樣圖、門窗大樣圖、門窗表等;
結 構 圖:結構設計說明、大樣圖、基礎平面布置圖、一層柱配筋圖、二層柱配筋圖、三層柱配筋圖、一層頂梁平法施工圖、二層頂梁平法施工圖、頂層梁平法施工圖、一層頂板結構平面圖、二層頂板結構平面圖、頂層板結構平面圖、樓梯配筋圖等;
給排水圖:給排水設計說明、一層給排水平面圖、二層給排水平面圖、三層給排水平面圖、衛生間大樣圖、給排水系統圖等;
電 氣 圖:電氣設計說明、電氣設備材料表、等電位聯結做法、配電系統圖、弱電系統圖、配電干線系統圖、一層照明平面圖、二層照明平面圖、三層照明平面圖、一層插座平面圖、二層插座平面圖、三層插座平面圖、一層弱電平面圖、二層弱電平面圖、三層弱電平面圖、基礎接地平面圖、屋頂防雷平面圖等
本方案為A3施工圖+彩色效果圖,拿到即可施工。






























































































