
|
本案例為北歐的現代簡約風格,整體設計比較簡約,沒有過多的裝飾品,營造一種輕松、自由的環境。 戶型:105平三室 設計風格:現代簡約 裝修模式:669套餐 全包造價:11.5萬
入戶玄關
客廳
餐廳
客廳
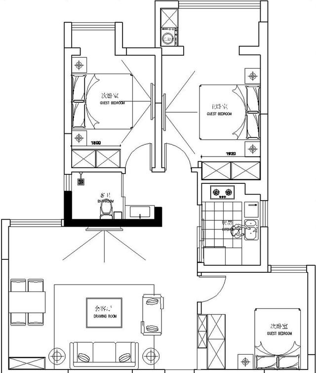
平面布局方案
客餐廳
轉載請注明出自別墅設計網:http://m.bjcyqiyejia.com/ 千套別墅設計帶別墅圖片 |
230平方米新農村二層自建別墅設計圖紙帶外觀圖,20X11米
占地:227平方米
140平方米兩層別墅CAD設計圖紙及效果圖,13x11米
占地:138平方米
農村四間二層半雙拼樓設計圖,住三帶人都沒有問題!
占地:270平方米
80多平米二層小型自建房設計圖,經濟舒適別具一格
占地:84.48平方米
180平方米漂亮大氣三層雙拼別墅設計圖,自建房圖片
占地:186平方米
小戶型三層別墅設計圖,戶型經典,外觀精致、美觀
占地:95平方米
歐式大戶型三層農村房屋設計圖紙,歐式住宅圖推薦
占地:178平方米
面寬11米超實用的農村一層別墅設計圖,南北通透造價不高
占地:110.47平方米
高端三層別墅設計圖紙,客廳中空,帶地下室,設置多個套間
占地:220平方米
農村三層私人住宅設計圖紙及效果圖,帶車庫,帶露臺
占地:150平方米
3款挑空客廳的二層小樓房設計圖,款款漂亮
閱讀次數:48516次
立邦油漆哪個系列好?小編一一對比分析
閱讀次數:31501次
2024十大環保油漆,中國十大環保油漆排名榜
閱讀次數:11505次
手上的油漆怎么洗-快速洗掉油漆小竅門
閱讀次數:7981次
無味油漆到底對人有沒有害?真實曝光
閱讀次數:7922次
8款不同風格樓梯設計效果圖,我最喜歡第8款
閱讀次數:7024次
立邦油漆價格表,立邦油漆一般多少錢一桶?
閱讀次數:6809次
為大家分享一套兩層農村自建房裝修案例,15萬搞定裝修
閱讀次數:6111次
2024年紫荊花油漆價格一般是多少錢一桶?品牌怎么樣
閱讀次數:6012次
嘉寶莉油漆價格一般是多少錢一桶?
閱讀次數:5765次
