
|
現在農村建房很多都是當地的施工隊,當地施工隊一般是根據經驗施工,所以圖紙此時就尤為重要。擁有專業的施工圖紙,有利于施工隊從前期的規劃設計中,根據當地的圖紙情況、氣候情況結合整體情況建造,在防水、現澆,砌墻等需要注意的地方也會引起重視。所以建房的戶型最好選擇施工簡單、造價經濟的,今天推薦的這5套別墅圖紙在農村地區都能建起來。 01
這棟二層別墅屬于框架結構,13.53X11.5米,占地面積150.3平米,總建筑總面積280.3平米。
左側是車庫,方便平時出行,車庫有一個后門和室內連通。屋前有門廊,可以擺放一些花草,增加美觀度。進門是堂屋,可以擺放神龕,紅白喜事也可以再次進行。樓梯間設計了儲物間,充分利用室內空間。二層又3臥室、1客廳、1書房、1露臺、1陽臺,露臺上有一個涼亭設計。 02
這是一棟經典的田園風別墅,同樣是框架結構建筑。13.7X10.2米,占地131.03平米,總建筑面積291.61平米。
一層洗手間設計在樓梯下,不會浪費活動區面積,并且設計了洗漱間,干濕分離。娛樂室平時可以休閑娛樂,讓農村生活不再單調。二樓有安靜的書房提供學習、工作的場所,客廳的設計方便招待客人。 03
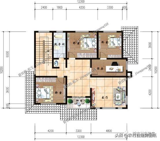
這棟清新秀雅風格的二層別墅屬于磚混結構,12.6X10.1米,占地面積116.3平米,總建筑面積253平米。
一樓有一個門廊和小陽臺的設計,在農村這樣的設計比較少見。客廳方正大氣,主人家的品味不言而喻。二樓3間臥室空間都比較寬敞,而且相對獨立,讓家人之間彼此不被打擾。 04
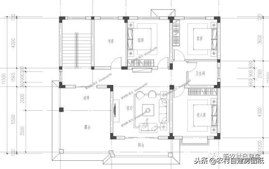
本戶型屬于磚混結構建筑,比較方正的戶型設計。12.3X11.2米,占地面積141.5平米,總建筑面積344平米。
這樣的戶型設計側重于居住品質的提高,一層朝南的臥室帶有內衛,適合家中的老人居住,二樓朝南的臥室一共3間,兩間帶有內衛,一間帶有陽臺,配置奢華讓人羨慕。 05
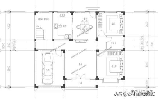
樸素典雅的三層別墅,整體采用瓷磚裝飾,易于建造。14.5X12.5米,占地面積157.59平米,總建筑面積436.65平米。
又是一款側重居住品質的別墅,一層除了基本的功能區,還設計了大氣的挑空客廳和旋轉樓梯,以及影音室和娛樂室,不需要也可以改建成臥室。二樓設計了2臥室、1書房、1休閑廳、1衛生間、1陽臺 。三層布局和二層布局類似,只是客廳設計成了衣帽間,多了一個大露臺和有收納功能的儲藏室。 現在很多農村人建房為了攀比,不僅要建的棋牌,還會使用很多復雜的歐式構件,室內空間布局根本不貼合農村實際。農村施工隊雖然有不少施工經理,但是技術知識和建房規范仍然匱乏。所以建房子首先一定要把圖紙弄明白,再考慮其它方面。 圖紙之家-專注農村別墅/自建房設計18年,集合國內200余位經驗豐富的設計師,被評為口碑最好的農村建筑設計公司! |

回農村建養老房,還是一層平頂戶型最合適,不單單只是省錢
占地:102.24平方米
13.5米乘11米兩層半別墅設計圖,中式與現代相融合
占地:148.5平方米
客廳中空三層復式別墅房屋設計圖,帶外觀效果圖
占地:145平方米
100平米兩間三層樓房設計圖,農村蓋房舒服實用最重要
占地:100平方米
100平方米農村二層CAD設計圖紙帶外觀圖,12X8米
占地:100平方米
一層半中式合院別墅設計圖,帶配房,有庭有院有品位
占地:135平方米左右
農村三合院設計圖及效果圖,自建三合院圖紙
占地:470平方米
漂亮時尚二層樓房設計圖紙,經濟實用,戶型通透
占地:150平方米
四開間一層半別墅設計圖,帶閣樓設計的戶型方案
占地:190.7平方米
小開間三層新中式小別墅設計圖,外觀圖優雅大氣,讓人心動!
占地:103.18平方米
農村兩層新中式自建房屋設計圖,受歡迎的帶小配房戶型
占地:多戶型可選
農村蓋房三層自建別墅設計圖紙,11米乘12米戶型方案
占地:132.55平方米
面寬12米三層自建房別墅設計圖,廚房在前面,農村施工隊都能建
占地:138.18平方米
開間20米雙拼別墅三層設計圖,兄弟合建省時省力又省心
占地:205.8平方米
現代二層農村別墅全套設計圖,大旋轉露臺+超大中空客廳
占地:133平方米
135平復式別墅房屋設計圖,外觀時尚、漂亮
占地:135平方米
平頂三層別墅設計方案,簡潔舒適大氣通透,12乘9米,打造理想住
占地:98.21平方米
二層帶車庫歐式尊貴別墅圖,客廳中空,美觀,大氣,實用
占地:300平方米
200平方二層小別墅設計圖紙,含效果圖,歐式風格帶車庫
占地:197.6平方米
110平房子設計圖,經典的農村自建房屋設計圖
占地:110平方米
推薦:10套新農村自建房設計圖,2026年最新設計
閱讀次數:4825737次
100套鄉村別墅圖片大全,2026年最新設計
閱讀次數:2492203次
6款農村蓋一層平房的設計圖,10萬元就能建起來
閱讀次數:1852637次
這11個一層農村自建房別墅火爆了朋友圈!我最喜歡戶型十!你呢
閱讀次數:750268次
農村6萬元建一層小別墅圖,你敢相信嗎
閱讀次數:567686次
農村5萬塊就能自建房,6套普通房子設計圖分享,你沒看錯!
閱讀次數:419410次
8套農村漂亮三間平房圖片,非常適合在農村修建!
閱讀次數:411197次
農村自建房化糞池怎么做?附方案及施工過程
閱讀次數:391783次
農村一層三間平房設計圖,告別土氣養老房,讓人忍不住點贊
閱讀次數:350581次
新農村二層樓房圖片造價12萬,挑一套回家建房吧!
閱讀次數:349126次
