
|
今天給大家分享的是一套兩層半歐式別墅設計案例,喜歡歐式的朋友可以看看。
建筑信息 開間?:18.8米 進深?:12米 ?結構:磚混 造假:每平方900
建筑整體為歐式風格,外立面主要采用文化磚和真石漆裝飾,一層做了一米高的基層防護,往上是深黃色的真石漆?。
建筑層次感比較強,從三層往下,每層面積遞增,使得建筑?非常立體穩重。
背里面窗戶部分做了飄窗處理,來豐富背面單調的立面,窗戶比較多,做到一窗一戶,?滿足室內采光。 下面來看下建筑四個立面的設計效果: (自行欣賞,不多作累述)
建筑正立面設計效果。(南面)
建筑正立面設計效果。(東面)
建筑正立面設計效果。(西面)
建筑背立面設計效果。(北面) 下面來看下平面布局效果:
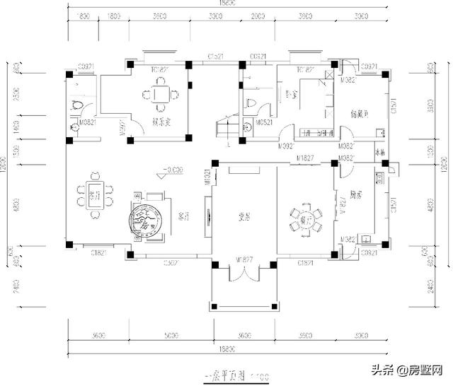
一層平面布局:一樓設有一個臥室,一個堂屋,一個開放式的客廳茶廳,一個廚房餐廳,一個娛樂室,一個儲物間。
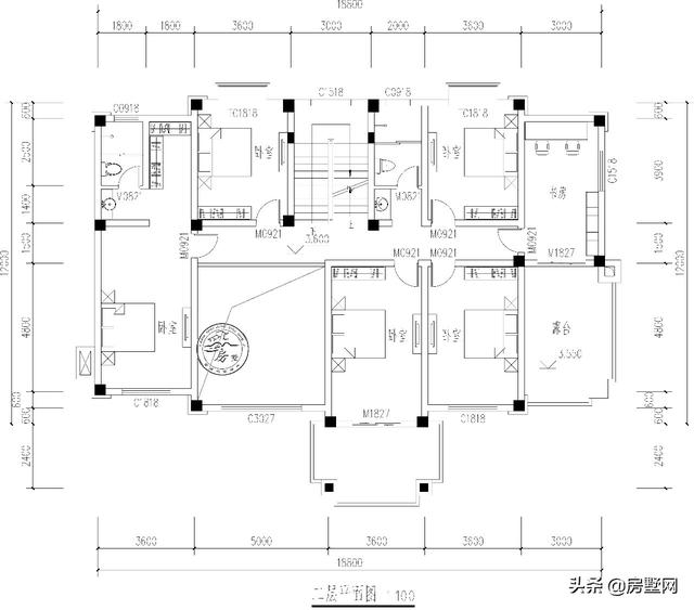
二層平面布局:二樓客廳挑空,設有五個臥室,一個書房,一個露臺。
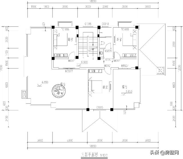
三層平面布局:三樓設有?三個臥室兩個露臺。 好了,今天的分享就到這里為止,喜歡我們的設計可以關注我們,我們將會為您帶來更多美麗的設計案例,我們下期再見,拜拜! 圖紙之家-專注農村別墅/自建房設計18年,集合國內200余位經驗豐富的設計師,被評為口碑最好的農村建筑設計公司! |

三層半復式別墅設計方案,全套設計圖+效果圖
占地:160平方米
適合農村自建四合院圖片,中式二層四合院別墅設計施工圖紙
占地:232平方米
2026二層農村新款別墅戶型圖,占地不到110平米
占地:110平方米
10萬農村別墅設計圖小戶型,經濟、耐看、實用
占地:多種戶型
農村10萬元一層小別墅設計圖紙,戶型實用又合理
占地:130平方米
實用型二層別墅設計圖,簡單大方最耐看,16.5米乘11米
占地:150.94平方米
鄉村三層簡單自建房子設計圖,全部建好34萬左右,外觀簡潔
占地:127.912平方米
2026年最新款四間二層別墅設計圖,15米乘13米
占地:171.01平方米
自建三層小洋樓設計圖紙,含效果圖,帶車庫
占地:121平方米
2026年新款一層住宅別墅設計圖紙,中式風格漂亮極了
占地:207平方米
2026最新款50萬左右農村三層別墅設計圖,客廳中空
占地:160平方米
小L型新款二層別墅設計圖,復式客廳旋轉樓梯,14米乘13米
占地:182平方米
歐式三層別墅設計圖,低調奢華,實用布局,好設計不容錯過
占地:134.1平方米
2026年新款別墅外觀圖及全套施工圖紙,占地面積13×10米
占地:130平方米
190平方米新農村三層(二層半)雙拼房屋設計圖紙,兄弟合建
占地:192平方米左右
200平米左右二層樓房設計圖,外觀看著舒服、布局住著坦然
占地:190平方米
雙戶168平方米小戶型新農村雙拼樓房設計建筑圖紙帶外觀圖
占地:168平方米
新農村三層房屋設計圖紙(含效果圖),農村小別墅圖紙推薦
占地:116.15平方米
120平面三層鄉村樓房設計圖及效果圖,歐式風格
占地:120平方米
農村20萬元二層小樓房設計圖,經典新農村自建房戶型
占地:120平方米
推薦:10套新農村自建房設計圖,2026年最新設計
閱讀次數:4825737次
100套鄉村別墅圖片大全,2026年最新設計
閱讀次數:2492203次
6款農村蓋一層平房的設計圖,10萬元就能建起來
閱讀次數:1852637次
這11個一層農村自建房別墅火爆了朋友圈!我最喜歡戶型十!你呢
閱讀次數:750268次
農村6萬元建一層小別墅圖,你敢相信嗎
閱讀次數:567686次
農村5萬塊就能自建房,6套普通房子設計圖分享,你沒看錯!
閱讀次數:419410次
8套農村漂亮三間平房圖片,非常適合在農村修建!
閱讀次數:411197次
農村自建房化糞池怎么做?附方案及施工過程
閱讀次數:391783次
農村一層三間平房設計圖,告別土氣養老房,讓人忍不住點贊
閱讀次數:350581次
新農村二層樓房圖片造價12萬,挑一套回家建房吧!
閱讀次數:349126次
