圖紙預覽及簡介:[僅是局部效果預覽,詳細圖紙請下載附件查看]
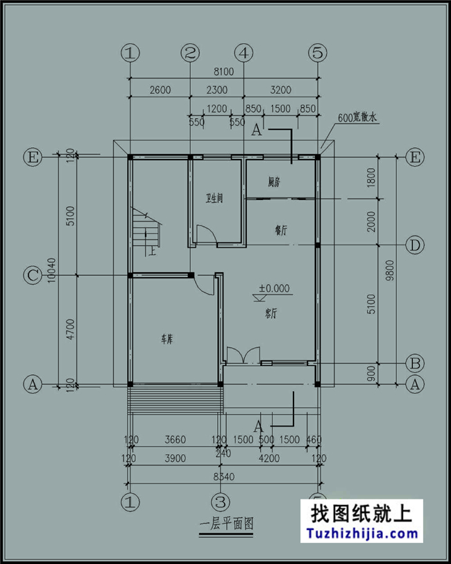
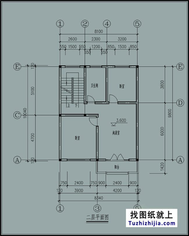
建筑占地面積:8.34米×10.04米;
建筑層數:三層;占地面積83平方米,建筑面積236平方米;
建筑高度:10米(不含屋頂);屋頂形式:坡屋頂;
設計功能:
一層:車庫、客廳、廚房、餐廳、衛生間、樓梯間;
二層:起居室、臥室、陽臺、臥室、衛生間、樓梯間;
三層:臥室、臥室、露臺、露臺、衛生間、樓梯間;
圖紙目錄:
建筑設計說明、結構設計說明、一層平面圖、二層平面圖、三層平面圖、屋面平面圖、北立面圖、南立面圖、1-1剖面圖、基礎平面圖、、三層梁平法施工圖、三層板平法施工圖、屋頂梁平法施工圖、基礎平面圖、屋頂板平法施工圖、二層梁平法施工圖、二層板平法施工圖;

































































































