建筑層數:三層;
建筑占地面積:8.1m*10.5m=80平方米;
建筑面積:224平方米
造價預算:17萬
建筑高度:10.8米(含屋頂)坡屋頂;
設計功能:
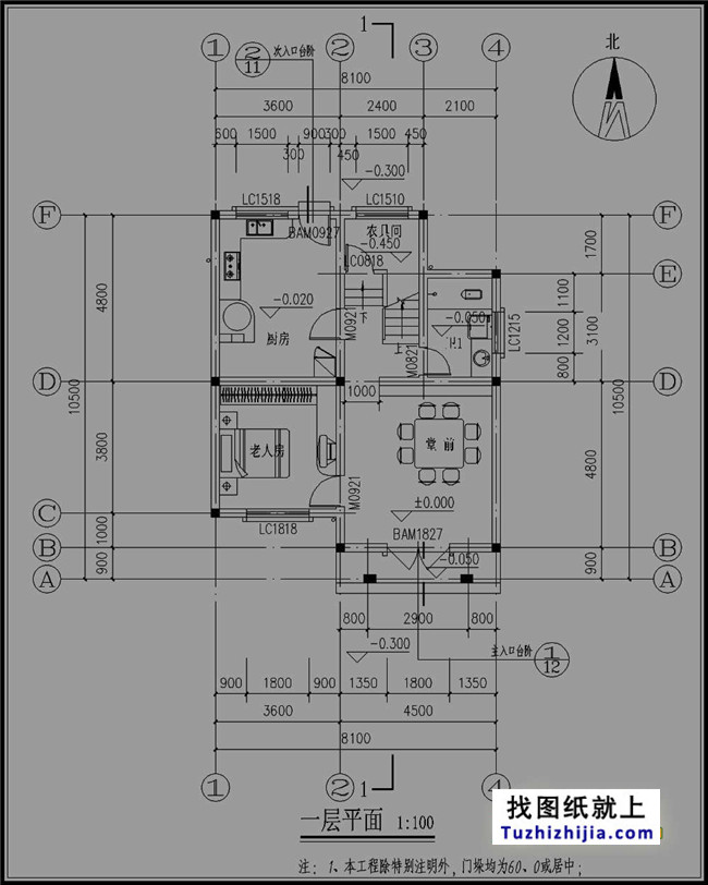
一層:堂前、老人房、廚房、衛生間、農具間;
二層:2間臥室、衛生間、起居室、陽臺;
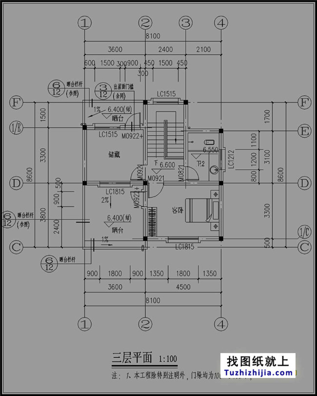
三層:客臥、衛生間、儲藏間、2個曬臺。
圖紙目錄:
建筑:一層平面、二層平面、三層平面、屋頂平面、正立面圖、背立面圖、左立面圖、右立面圖、1-1剖面、樓梯一層平面、樓梯二層平面、樓梯三層平面、A-A樓梯剖面、樓梯欄桿、平臺欄桿、1型硬木扶手、樓梯詳圖、門窗表、門窗大樣、衛1放大平面、衛2放大平面、陽臺側板做法、散水大樣、次入口臺階、腰線1、腰線2、陽臺及雨棚大樣、保溫屋面檐口、出屋面門檻、主入口臺階、曬臺欄桿、圖紙目錄、建筑設計說明;
結構:基礎平面布置圖、基礎詳圖、一層柱位布置圖、二層柱位布置圖、三層柱位布置圖、柱配筋詳圖、陽臺及雨棚配筋詳圖、梁施工圖、腰線配筋、屋面梁施工圖、屋面梁配筋示意、陽臺側板處配筋、曬臺欄桿處配筋、檐口1配筋、檐口2配筋、樓板配筋圖、上折板構造詳圖、下折板構造詳圖、屋面板配筋圖、樓梯一層結構平面圖、樓梯二層結構平面圖、樓梯三層結構平面圖、樓梯結構A-A剖面、節點詳圖、樓梯梯段板配筋圖、結構構造詳圖、圖紙目錄、結構設計說明;
給排水:一層給排水平面圖、二層給排水平面圖、三層給排水平面圖、屋頂給排水平面圖、衛生間1大樣圖、衛生間2大樣圖、JL-1給水系統圖、WL-1污水系統圖、雨水系統圖、圖紙目錄、給排水設計說明與圖例;
電氣:AL配電箱系統圖、弱電系統圖、一層配電平面圖、二層配電平面圖、三層配電平面圖、基礎接地平面布置圖、屋頂防雷平面圖、一層弱電平面圖、二層弱電平面圖、三層弱電平面圖、圖紙目錄、電氣設計說明、1張效果圖。
1.本工程為《2010年度淳安縣農村住宅戶型方案設計競賽》90平方米戶型,總建筑面積為194.94平方米,占地面積為89.60平方米。
2.本工程屬磚混結構,建筑層數為三層,建筑高度為:9.90米,建筑結構安全等級為二級,設計使用年限50年,建筑耐火等級二級,抗震設防烈度小于六度,屋面防水等級Ⅱ級。
圖紙信息:
本工程為3層框架結構,結構的安全等級為二級,重要性系數為1.0,設計使用年限為50年。
基礎設計等級為丙級。
本工程室內地坪設計標高±0.000根據單體所在場地按實際調整。
本工程采用柱下獨立及墻下條形基礎,基礎混凝土等級除圖中注明者外,其余均為C25。

































































































