
|
你不是蓋不起別墅,只是沒有看中的而已!現在農村蓋房的多了,外觀和布局上很難再有新意,這讓后來蓋房的業主們更難選擇中意的戶型,這次河南的田先生就曬家,給我們提供了一個漂亮的戶型參考:
田先生實際在城里有房,鄉下蓋個小二層帶院子,逢年過節回來住剛剛好。
地處非常寬敞的地帶,但是能夠審批下來的并不是很大面積。
主體施工,放線、支模現澆。
用水泥找平,填補可能存在的縫隙孔洞,之后開始上層施工
屋頂同樣是支模現澆混凝土。
主體樣子已經出來了,外墻抹灰
外墻用的是真石漆,拆除了支架后的房子更精致漂亮了。
安裝了門窗,圍欄,并帶有一個開放式的車庫。
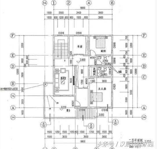
平面圖
![]()
圖紙之家-專注農村別墅/自建房設計18年,集合國內200余位經驗豐富的設計師,被評為口碑最好的農村建筑設計公司! |

新款農村四層復式別墅設計圖紙及效果圖,外立面清新別致
占地:207平方米
230平(單戶115平)雙拼別墅房屋設計圖及效果圖大全
占地:230平方米
面寬11米超實用的農村一層別墅設計圖,南北通透造價不高
占地:110.47平方米
最新歐式三層別墅設計圖紙,超漂亮,預算30到40萬
占地:160平方米
農村一層中式三合院太香了!白墻黛瓦,有院有景超宜居
占地:364.72平方米
120平米農村40萬三層別墅自建房款式,簡歐風格
占地:120平方米
二層歐式小別墅設計方案,全套建筑設計圖紙+外觀效果圖
占地:146平方米
新農村自建三層復式結構房屋別墅設計圖紙及效果圖
占地:138平方米
農村二層小別墅自建房屋設計圖,客廳中空,占地150平米
占地:150平方米
農村二層半樓房效果圖及全套設計圖紙,自建房簡單實用
占地:121平方米
經典三層農村房屋設計圖紙,占地100平米左右,外觀典雅精致,內
占地:100平方米
三層農村自建別墅設計圖紙及效果圖,占地110平米,外觀精致又大
占地:110平方米
農村兄弟雙拼別墅三層,美觀氣派,室內布局合理實用
占地:300平方米
鄉村高檔四層豪華別墅自建房設計圖,一層不帶餐廳廚房戶型
占地:147平方米
農村七字形獨棟一層別墅設計圖,設計感十足
占地:274.51平方米
17X12米三層雙拼別墅自建房設計圖,歐式風格,戶型方正
占地:190平方米
農村小戶型二層房屋別墅設計圖,帶外觀效果圖
占地:95平方米
帶地下室一層別墅設計方案,功能布局齊全實用
占地:256.5平方米
鄉村二層半別墅圖紙設計,歐式風格、錯落有致,150平左右
占地:149.76
15×12米一層農村寶藏戶型,適合養老房,看完鄰居直接要圖紙!
占地:180平方米
推薦:10套新農村自建房設計圖,2026年最新設計
閱讀次數:4825737次
100套鄉村別墅圖片大全,2026年最新設計
閱讀次數:2492203次
6款農村蓋一層平房的設計圖,10萬元就能建起來
閱讀次數:1852637次
這11個一層農村自建房別墅火爆了朋友圈!我最喜歡戶型十!你呢
閱讀次數:750268次
農村6萬元建一層小別墅圖,你敢相信嗎
閱讀次數:567686次
農村5萬塊就能自建房,6套普通房子設計圖分享,你沒看錯!
閱讀次數:419410次
8套農村漂亮三間平房圖片,非常適合在農村修建!
閱讀次數:411197次
農村自建房化糞池怎么做?附方案及施工過程
閱讀次數:391783次
農村一層三間平房設計圖,告別土氣養老房,讓人忍不住點贊
閱讀次數:350581次
新農村二層樓房圖片造價12萬,挑一套回家建房吧!
閱讀次數:349126次
