
|
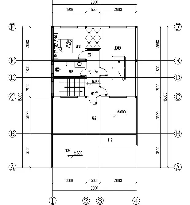
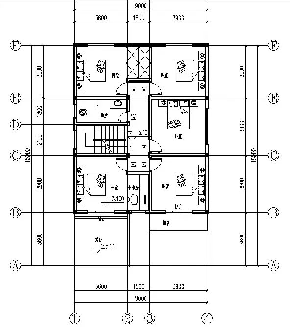
【項目名稱】:9X15帶前院三層獨棟別墅 【建筑面積】:340平方米 【建筑高度】:11.000米 【功能布局】:6臥室1客廳1堂屋3衛生間1廚房1娛樂室1露臺1前院 【預算造價】:30~35萬(毛坯) 本戶型為新款農村三層樓房,占地面積135平方米,建筑檐口高度8.5米,總建筑高度11米。一層設有車庫、客廳、堂屋、廚房兼小餐廳、衛生間、麻將室、小院子;二層設有臥室5間,衛生間1間、一個小書房、大露臺;三層設有臥室1間、衛生間1間、桌球室、大露臺。 ![]() ![]() ![]() 平面圖 ![]() 首層平面圖 ![]() 二層平面圖 ![]() 三層平面圖 老家的房子都是建的一個模樣,沒有新意。布局也不合理,非常的簡單,浪費空間面積。此戶型圖拿回家給家里人看,開始堅決不同意,經過我多番溝通,同意建造此戶型。或許當我房子建起來后,此戶型將會成村子模仿建造的標桿吧。 轉載請注明出自別墅設計網:http://m.bjcyqiyejia.com/ 千套別墅設計帶別墅圖片 |

農村二層帶車庫四合院別墅設計圖,新中式外觀圖片,戶型實用方
占地:247平方米
農村三層樓房設計圖三層別墅圖片,占地面積135平米
占地:135平方米
帶地下室三層豪華大氣新農村房屋設計圖,占地150平米左右
占地:150平方米
90平方米新農村二層自建房屋設計全套施工圖紙帶外觀效果圖10X
占地:90平方米
造價15萬經濟美觀一層農村別墅設計圖,占地150平米
占地:150平方米
地中海風格二層別墅設計圖及效果圖,外觀有格調
占地:125平方米
小戶型經濟農村雙拼自建房別墅設計圖紙,二層簡約造價低
占地:138平方米
130多平方米新農村三層別墅建筑設計圖及效果圖
占地:133平方米左右
時尚一層別墅圖,一層這樣蓋房最漂亮
占地:160平方米
大氣豪華四層別墅設計圖紙,占地180平米左右
占地:180平方米
五十萬二層半鄉村別墅,客廳挑空設計,占地200平米左右
占地:200平方米
造價30萬的三層簡歐新農村別墅設計施工圖紙及效果圖
占地:133平方米
簡單實用農村自建四層小別墅設計圖(三層半),95平米
占地:95平方米
12×11米兩層農村建房圖紙,農村建房最佳戶型,簡單的風格
占地:140平方米
140平方米一層歐式新農村平房設計圖,主體造價僅11萬
占地:141.218平方米
帶小院新農村房屋設計圖紙,三層別墅推薦
占地:115平方米
兄弟雙拼四間三層別墅設計圖,農村自建推薦戶型方案
占地:260平方米
160平方米二層平屋頂房屋設計圖紙及效果圖17x11米
占地:164平方米
125平方米新農村三層自建別墅施工設計圖,13x10米
占地:125平方米
地中海風格二層別墅設計圖方案,含外觀效果圖
占地:130平方米
11×10造價25萬帶神位平頂三層自建房設計圖
閱讀次數:29678次
2021年最流行的10套經典農村別墅,最愛那一套?
閱讀次數:25940次
進深8.5米,開間12米,帶堂屋的樓房設計圖怎么做?
閱讀次數:23817次
18萬搞定的農村二層別墅,詳細施工過程實拍!含別墅設計圖!
閱讀次數:17744次
5款帶落地窗的農村別墅,大氣的別墅就應該是這個樣子
閱讀次數:17217次
15套2017年最新潮二層農村別墅,這樣蓋既實用又上檔次!
閱讀次數:12834次
2021農村建的最多的2款二層小別墅戶型,爆款是有理由的
閱讀次數:11876次
農村自建房這樣預埋水電管,老師傅說規范又實用
閱讀次數:11471次
9X12米二層農村別墅,不超過規定面積還能有小院
閱讀次數:10618次
農村自建房打地基的費用是多少,需要注意哪些問題?
閱讀次數:10549次
