
|
免費送!新農村自建房設計圖,該戶型為兩層13.1X12.8米,二樓兩邊都有露臺,二樓中間房間的坡頂上有閣樓,也可以當成假三層來用。
外觀一
外觀二
外觀三 全套施工圖紙一共15張,承諾絕對免費送,只需承擔打印成本和郵寄費就可以了,下面來看看戶型圖
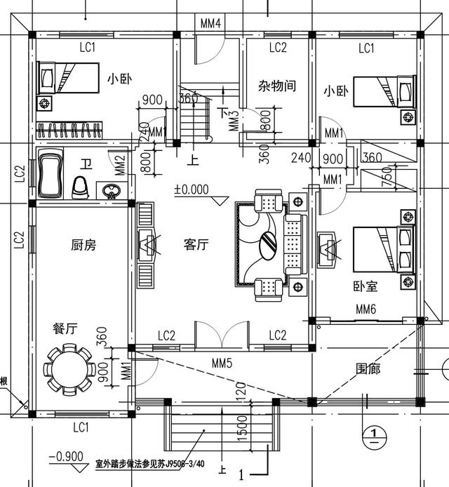
一樓
二樓 轉載請注明出自別墅設計網:http://m.bjcyqiyejia.com/ 千套別墅設計帶別墅圖片 |

普通簡單的平屋頂二層房子設計,造價低施工簡單
占地:151.04平方米
帶車庫帶露臺二層農村小別墅設計圖,宅基地大小適中,外觀造型
占地:180平方米
農村二層半樓房效果圖及全套設計圖紙,自建房簡單實用
占地:121平方米
新款農村三層雙拼聯體別墅戶型圖,客廳中空,單戶120平米左右
占地:240平方米
新款私人定制四層歐式獨棟住宅別墅設計圖紙,含外觀效果圖
占地:138平方米左右
小戶型三層別墅房屋設計圖紙,占地80多平米,麻雀雖小五臟俱全
占地:80平方米
大二間三層別墅戶型圖,三層新農村自建房設計圖紙及效果圖
占地:116平方米
帶地下室三層豪華大氣新農村房屋設計圖,占地150平米左右
占地:150平方米
農村四層復式樓房設計圖,外觀效果圖+全套圖紙
占地:108平方米
地中海風格二層別墅房屋設計圖,帶外觀效果圖
占地:150平方米
90平方米新農村二層自建房屋設計全套施工圖紙帶外觀效果圖10X
占地:90平方米
簡單農村二層平屋頂房屋設計圖,外觀簡潔、大方
占地:200平方米
農村三層帶露臺、帶車庫房屋設計圖,含外觀圖片
占地:155平方米
最好看的新款農村三層復式別墅設計圖片及設計圖,外觀高端、大
占地:160平方米
2021年經典新中式三層別墅設計圖紙,新款自建房戶型圖
占地:158.19平方米
歐式新農村三層復式樓自建房別墅圖紙,旋轉樓梯設計
占地:128平方米
新款現代一層小別墅設計圖,農村自建平房推薦戶型
占地:129.36平方米
歐式小型二層別墅效果圖片,帶全套Cad別墅設計圖紙
占地:120平方米
農村高端中式三層雙拼全套房屋施工設計圖,效果圖很大氣
占地:340平方米
最新款農村三層自建房戶型設計圖及外觀圖片照片,鄉村蓋房精選
占地:112.56平方米
11×10造價25萬帶神位平頂三層自建房設計圖
閱讀次數:29678次
2021年最流行的10套經典農村別墅,最愛那一套?
閱讀次數:25940次
進深8.5米,開間12米,帶堂屋的樓房設計圖怎么做?
閱讀次數:23817次
18萬搞定的農村二層別墅,詳細施工過程實拍!含別墅設計圖!
閱讀次數:17744次
5款帶落地窗的農村別墅,大氣的別墅就應該是這個樣子
閱讀次數:17217次
15套2017年最新潮二層農村別墅,這樣蓋既實用又上檔次!
閱讀次數:12834次
2021農村建的最多的2款二層小別墅戶型,爆款是有理由的
閱讀次數:11876次
農村自建房這樣預埋水電管,老師傅說規范又實用
閱讀次數:11471次
9X12米二層農村別墅,不超過規定面積還能有小院
閱讀次數:10618次
農村自建房打地基的費用是多少,需要注意哪些問題?
閱讀次數:10549次
