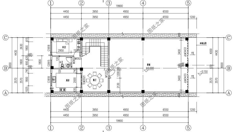
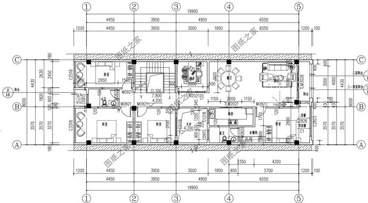
占地面積:19.9m*8m,159.2平方米左右;
建筑層高:四層;
建筑高度:20.122米(含屋頂);
設計功能:
一層戶型:商鋪、廚房、餐廳、臥室、衛生間;
二層戶型:客廳、廚房、餐廳、書房、臥室(帶衣帽間,衛生間)、臥室x3、衛生間、陽臺;
三層戶型:客廳、廚房、餐廳、書房、臥室(帶衣帽間,衛生間)、臥室x3、衛生間、陽臺;
四層戶型:客廳、廚房、餐廳、書房、臥室(帶衣帽間,衛生間)、臥室x3、衛生間、陽臺;
五層戶型:臥室x3、衛生間、露臺;


















































































