圖紙介紹:新農村平屋頂四層農村自建別墅(三層半樓房房屋設計圖),大型落地窗搭配超大露臺涼亭!整體外觀看上去那是相當的豪華氣派。屋頂邊緣橘紅色的琉璃瓦鋪蓋,主墻外墻面采用米黃色真石漆+淺咖色面磚+褐色大理石瓷磚來裝飾+浮雕飾畫和歐式構件。入戶門處設有玄關,從門口不能直接看到屋內事物,隱私性比較好。二至三層布局:臥室帶衛生間和衣帽間,空間很大又具有單獨的實用空間,并且直通陽臺。四層布局:客臥、起居室、洗衣房,公衛,涼亭、大露臺。大面積的室外休閑空間,足夠滿足日常生活。
占地面積:8.2m*13.6m,112平方米;
建筑層高:四層;
建筑高度:15.3米(含屋頂);
設計功能:
一層戶型: 玄關,客廳,廚房,餐廳,儲藏室,主臥,公衛;
二層戶型:主臥(帶衛生間+陽臺+衣帽間),起居室,客臥,公衛,書房;
三層戶型:主臥(帶衛生間+陽臺+衣帽間),起居室,客臥,公衛,書房;
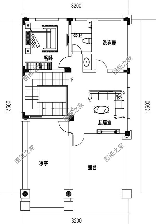
四層戶型:涼亭,露臺,起居室,客臥,公衛,洗衣房;
圖紙目錄:
建筑圖:圖紙目錄、建筑說明、各層平面圖、立面圖x4、剖面圖、大樣圖、樓梯大樣圖、節點大樣圖、門窗表;
結構圖:圖紙目錄、結構說明、基礎配筋圖、基礎大樣圖、梁結構配筋圖、板結構配筋圖、屋面結構配筋圖、樓梯結構配筋圖、節點大樣圖;
給排水圖:圖紙目錄、設計說明、給排水平面圖、衛生間排水大樣圖、給排水系統圖、排水系統圖;
電氣圖:圖紙目錄、電氣說明、等離子電位作法、強點系統圖、弱電系統圖、照明布置圖、插座布置圖、弱電布置圖、基礎接地布置圖、屋頂防雷布置圖。
本套方案包含全套A3設計圖+彩色效果圖。























































































