
1.本工程為住宅式私人會所,包括:首層為觀景水池、車庫以及其他配套設施用房;二層為客廳、和室、餐廳及廚房、衛生間、休閑外廊;三層為客房、休閑室及屋頂花園;四層為主臥、衣帽間及豪華衛浴、書房、健身房、衛生間、露臺。
2.本工程為四層鋼筋混凝土框架(無梁樓板)結構,首層層高 3.0 米,二、三、四層均為 3.6 米,總建筑面積 663.82 平方米。本地區抗震設防烈度為六度。
3.本工程施工及材料驗收應嚴格按設計圖紙及選用的標準圖進行,并遵守國家頒發的有關建筑工程各類現行施工及驗收規范,土建施工與設備安裝應密切配合,施工安裝前應先全面了解有關工種設計圖紙內容及設計要求,并協助設計單位發現設計中存在的錯、漏、碰、缺等問題,使之及時得到糾正,以保證工程進展及施工安裝質量。
建筑占地面積:13.5m*14.7m;
建筑層數:四層;
占地面積:198.45
建筑面積:663.82平方米
建筑高度:13.8米(含屋頂)平屋頂;
結構形式:框架結構;
設計功能:
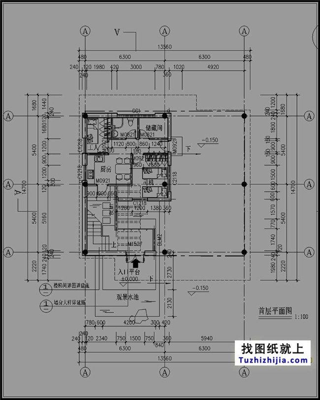
一層:景觀水池、廚房、司機臥室、工人房、儲藏間、衛生間;
二層:客廳、和室、衛生間、廚房、餐廳、休閑外廊;
三層:屋頂花園、4間客房(自帶衛生間)、休閑室;
四層:書房、健身房、衛浴、衣帽間、屋頂花園上空、主臥室、露臺;
圖紙目錄:一層平面圖、二層平面圖、三層平面圖、屋頂平面圖、四層平面圖、門窗表、門窗圖例、首層總平面圖、東西南北立面圖、首層輔助用房平面圖、圍墻局部平面、立面圖、二層衛生間及廚房平面圖、三層客房及衛生間平面圖、四層樓梯間及豪華衛浴平面圖、樓梯詳圖、墻身大樣、欄桿詳圖、1-1剖面圖、2-2剖面圖、效果圖。
























































































