
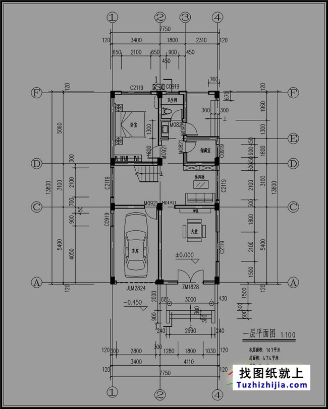
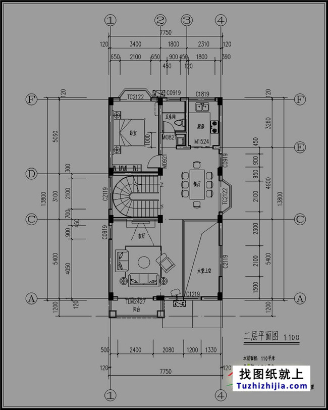
開間:7.75米 進深:13.8米
占地面積:107平米
建筑面積:474平米
結構類型:框架結構
造價預算:50萬
規格數量:66張A3圖紙+2張A4彩色效果圖
設計功能:
—層:大堂、車庫、休閑處、臥室、衛生間、儲藏室;
二層:臥室、大堂上空、衛生間、廚房、餐廳、陽臺;
三~四層:臥室X3、起居室、衛生間X2、陽臺、天亭。
五層:臥室、活動室、衛生間、露臺X2。
圖紙詳情
建施:建筑設計總說明、門窗表、一層平面圖、二層平面圖、三層平面圖、四層平 面圖、五層平面圖、屋頂平面圖、東立面圖、南立面圖、西立面圖、北立面 圖、剖面圖、樹辟面圖、門窗大樣圖、天溝大樣圖、門樓大樣、腰線大樣;
結施:結構設計總說明、基礎平面布置圖、基礎大樣圖、一層及以下柱定位及配筋 圖、二層拄定位及配筋圖、三層拄定位及配筋圖、四層拄定位及配筋圖、五 層及以上拄定位及配筋圖、基礎梁配筋圖、一層復式梁配筋圖、一層復式板 酉己筋圖、二層梁配筋圖、二層板配筋圖、三層梁配筋圖、三層板配筋圖、四 層梁配筋圖、四層板配筋圖、隔熱層梁配筋圖、隔熱層板配筋圖、屋面梁配 筋圖、屋面板配筋圖、樓梯配筋詳圖;
水施:給排水設計說明、一層給排水平面圖、二層給排水平面圖、 三層排水平面圖 四層排水平面圖、五層排水平面圖、衛生間大樣圖、給排水系統圖;
電施:電氣設計說明及圖例、一層照明平面圖、二層照明平面圖、三層照明平面圖 四層照明平面圖、五層照明平面圖、一層插座平面圖、二層插座平面圖、三 層插座平面圖、四層插座平面圖、五層插座平面圖、一層接地及弱電平面圖 二層弱電平面圖、三層弱電平面圖、四層弱電平面圖、五層弱電平面圖、屋 頂防雷裝置平面圖、配電系統圖衛生間局部等電位聯接示意詳圖、弱電系統 圖。

























































































